Vuokrataan toimistotilat - Tampere
Biokatu 10, 33520 Tampere #10857644
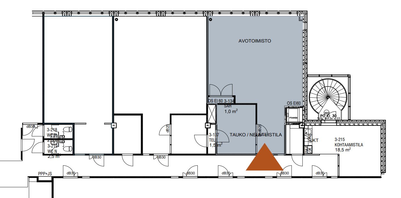
Vuokrattavana 3. kerroksen toimistotila.
Osoite
Biokatu 10, 33520 Tampere
Tilatyyppi
Toimistotilaa
67,5 m2
Kiinteistö
Vuokrattavana 3. kerroksen toimistohuone. Toimistossa on avotila ja oma pieni taukotila. Toimitilaan on käynti yhteiskäytävältä. Kerroksen keittiötila, taukotila, WC:t sekä varattava neuvottelutila ovat yhteiskäyttöisiä.
Sijainti
Kauppi, Tampere
Pysäköinti
Vuokrattavia autopaikkoja.
Palvelut
- Lounasravintola
- Vuokrattavia neuvottelutiloja
- Saunaosasto
- Catering
- Vuokrattavia neuvottelutiloja
- Saunaosasto
- Catering
Kulkuyhteydet
- Juna-asema 2,8km.
- Lentoasema 14,3km.
- Lentoasema 14,3km.
Vapautuu
Heti
Kerros
3
Energiatehokkuusluokka
Ei lain edellyttämää energiatodistusta
Näkyvällä paikalla
Hissi
Ota yhteyttä
REALIUM OY LKV
Tammasaarenkatu 1, 00180 Helsinki
Vaihde:
Näytä puhelinnumero
010 326 346
Tuomo Mäkelä
tuomo.makela@realium.fi
p.
Näytä puhelinnumero
044 050 1158
Joel Keto
joel.keto@realium.fi
p.
Näytä puhelinnumero
045 317 0330
KAIKKI TILAVAIHTOEHDOT KERRALLA!
SOITA - MEILAA JA TILAA NÄYTTÖ!
Ilmainen palvelu tilanhakijoille.
Kartoitamme parhaat tilavaihtoehdot.
Kaikki kohteet eivät ole netissä.
Pyydä lisätietoa
