Vuokrataan liiketilat, näyttelytilat, varastotilat, työtilat, muut tilat - Vantaa
Tuupakantie, Tuupakka, 3 Vantaa #10857643
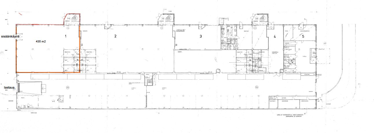
VUOKRATAAN 435 m2 monikäyttöinen toimitila Tuupakassa - Tuupakantie 3, VANTAA. Toimitilassa on nosto-ovellinen lastausalue sekä 4,5 m vapaa korkeus, mikä tekee siitä toimivan myös tavarankäsittelyyn ja logistiikkaan. Toimitilassa keittiö, kaksi sosiaalitilaa/pukuhuonetta, joissa molemmissa suihkutilat.
Osoite
Tuupakantie, 3 Vantaa
Tilatyyppi
Liiketilaa
435 m2
Näyttelytilaa
435 m2
Varastotilaa
435 m2
Työtilaa
435 m2
Muuta tilaa
435 m2
Yhteensä
435 m2
Vuokra
4350
Vuokraan sisältyy vesi, lämpö
Kiinteistö
Kiinteistössä kaukolämpö ja koneellinen ilmanvaihto.
Sijainti
Kehä III Tuupakan liittymän läheisyydessä (n. 200 m) Mc Donalds ravintolaa vastapäätä.
Ympäristö
Alueella useita lounasravintoloita ja vahva yrityskeskittymä (mm. IKH, Sonepar, Eaton Electric jne.)
Pysäköinti
Pysäköinti toimitilan edessä ja aidatulla pysäköintialueella. Lisäksi julkisen liikenteen pysäkki sijaitsee kiinteistön edessä.
Vapautuu
Sopimuksen mukaan
Kerros
1 / 1
Huoneiden lukumäärä
1
Katutasossa
Näkyvällä paikalla
Liitetiedostot
Ota yhteyttä
HTT-Kiinteistöt Oy
Virtanen Timo
Näytä puhelinnumero
0400 499 387
Virtanen Teemu
Näytä puhelinnumero
0400 761 091
Pyydä lisätietoa
