Vuokrataan toimistotilat - Espoo
Lars Sonckin Kaari 10-16, Leppävaara, 02600 Espoo #10857622
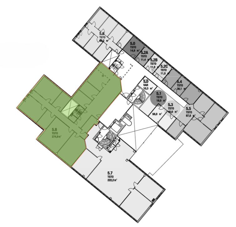
Vuokrataan Stella Business Parkista 5. kerroksen toimistotila. Ohessa havainnollistavia kuvia.
Laadukkaat business park -tason palvelut, kuten aulapalvelu, kuntosali, henkilöstöravintoa, saunaosasto sekä useita kokoushuoneita.
Stella Business Park on yrityspuisto Espoon Leppävaarassa. Neljä tähtitaivaan kirkkaimpien tähtien mukaan nimettyä taloa; Nova, Solaris, Luna ja Terra tarjoavat vuokrattavaa toimitilaa pienille ja keskisuurille yrityksille.
Stella sijaitsee Pohjois-Euroopan suurimmassa teknologiakeskittymässä, missä kehittymis- ja toimintamahdollisuudet alan yrityksille ovat huomattavat. Stellassa vuokralaiset viihtyvät ja menestyvät. Tästä varmana merkkinä voidaan pitää yrityspuiston poikkeuksellisen korkeaa käyttöastetta.
Yli kymmenen vuotta vanha Stella on juuri läpikäynyt mittavan ilmeen uudistuksen. Viihtyisyyden lisäämiseksi kaikkien talojen aulatilat sekä kokoustilat ovat saaneet kaipaamansa piristysruiskeen. Samalla myös sisä- ja ulko-opasteet ovat siirtyneet digitaalisiksi.
Lisätietoja 020 7290 710, lisää kohteita www.premises.fi
Kohteella ei ole lain edellyttämää energiatodistusta.Kerros: 5
CRE PREMISES
Puh. Näytä puhelinnumero 020 7290 710
Vantaankoskentie 14
01670 VANTAA
