Vuokrataan toimistotilat - Helsinki
Paasivuorenkatu 3, Hakaniemi, 00530 Helsinki #10857616
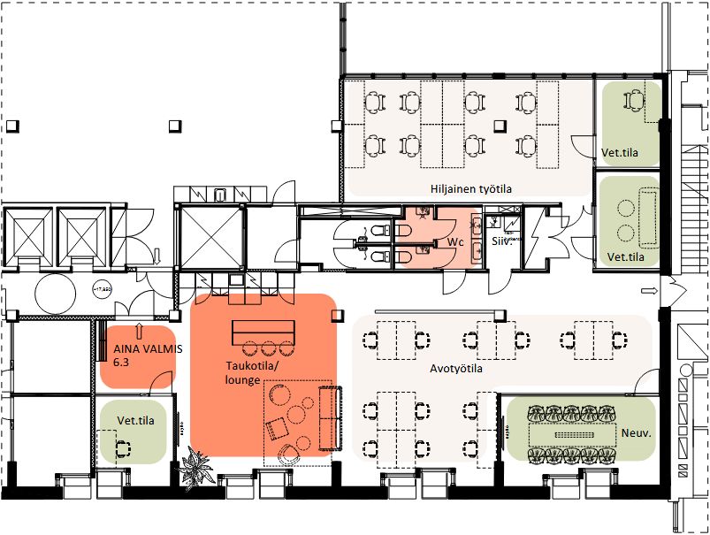
Vuokrataan 6.kerroksen toimitila. Tila remontoidaan Aina Valmis -konseptin mukaisesti laadukkailla ja vastuullisilla materiaaleilla sekä toimivalla tilaratkaisulla vastaamaan nykytyöelämän vaatimuksia. Ohessa havainnollistavia kuvia kiinteistön tiloista.
Paasivuorenkatu 3 tarjoaa tyylikästä toimitilaa hyvällä paikalla Hakaniemessä! Talossa on toiminut aiemmin Nordean konttori. Talo on peruskorjattu vuonna 2011 sen alkuperäistä tunnelmaa kunnioittaen. Rakennuksen pankkisali ja aulatilat luonnonkivilaatoituksineen henkivät entisaikojen tunnelmaa.
Kiinteistössä palvelee edustava tilaussauna ja sisäpihalla on viihtyisä talvipuutarha. Näkymät tiloista avautuvat upeaan Paasivuorenpuistikkoon. Liikenneyhteydet kehittyvään ja uudistuvaan Hakaniemeen ovat erinomaiset ja läheisestä pysäköintihallista on mahdollista vuokrata parkkitilaa.
Lisätiedot 020 7290 710. Lisää kohteita www.premises.fi
Kohteella ei ole lain edellyttämää energiatodistusta tai energialuokka ei tiedossa.Kerros: 6
CRE PREMISES
Puh. Näytä puhelinnumero 020 7290 710
Vantaankoskentie 14
01670 VANTAA
