Vuokrataan toimistotilat - Helsinki
Sörnäistenkatu 1, Sörnäinen, 00580 Helsinki #10857609
Valoisa ja avara toimistotila, josta upeat näkymät Teurastamolle.
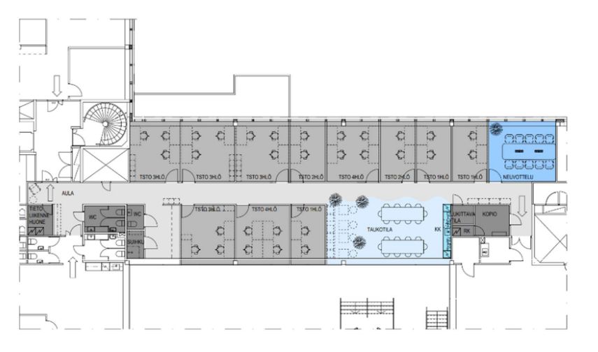
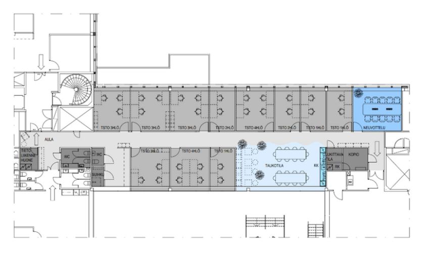
Kohde on kuin luotu nuorelle ja luovalle yritykselle. Sijaitsee trendikkäällä ja kasvavalla Kalasataman alueella. Toimitilat ovat hyvin muokattavissa ja modernisoidaan tulevan käyttäjän tarpeiden mukaan. Kulkuyhteydet kohteeseen ovat erinomaiset. Metro pysähtyy viereisellä Kalasataman asemalla. Ohessa havainnollistavia kuvia.
Kohde on kuin luotu nuorelle ja luovalle yritykselle. Sijaitsee trendikkäällä ja kasvavalla Kalasataman alueella. Toimitilat ovat hyvin muokattavissa ja modernisoidaan tulevan käyttäjän tarpeiden mukaan. Kulkuyhteydet kohteeseen ovat erinomaiset. Metro pysähtyy viereisellä Kalasataman asemalla
Kiinteistö Oy Sörnäistenkatu 1 tunnetaan linjakkaasta ja ajattomasta arkkitehtuuristaan sekä yritystoimintaa tukevista, tasokkaista palveluista. Vuokrattavana on nyt valoisaa ja tehokasta huone- ja avokonttoritilaa, jossa myös tekniset ratkaisut ovat huippuluokkaa.
Sörnäistenkatu 1:n palvelut ovat tasokkaat. Kiinteistössä on tilava autohalli, kuntosali, useita kabinetteja ja kokoustiloja, laadukas henkilöstöravintola, vastaanottopalvelut ja korkeatasoiset turvajärjestelyt. Sörnäisten ja Hämeentien monipuoliset ravintolat, kahvilat, kaupat ja virastot sijaitsevat kävelyetäisyydellä.
Lisätiedot 020 7290 710. Lisää kohteita www.premises.fi
Kohteella ei ole lain edellyttämää energiatodistusta tai energialuokka ei tiedossa.Kerros: 2
CRE PREMISES
Puh. Näytä puhelinnumero 020 7290 710
Vantaankoskentie 14
01670 VANTAA
