Vuokrataan varastotilat - Kerava
KOY Keravan Talliosake 5 tila 7 – parvi, wc, Saviontie 24, 04260 Kerava #10857513
Uutta tilaa vuokrattavana! Keravan Talliosakkeelta monikäyttöinen varasto, autotalli, harraste-, toimitila 7. Tilassa jo valmiina parvi sekä wc.
Osoite
Saviontie 24, 04260 Kerava
Tilatyyppi
Varastotilaa
57 m2
Vuokra
760 € / kk
Kiinteistö
KOY Keravan Talliosake 5
Sijainti
Keravan Talliosake 5 sijaitee aivan Saviontien varrella, vain kivenheiton päässä juna-asemalta, Kerava – Helsinki -junaradan varrella. Vain kolmen minuutin ajomatka Keravan keskustastaan ja viidessä minuutissa olet jo Lahden moottoritiellä (E75).
Muuta
AVOIMET OVET keskiviikkona 25.02. klo 15.00-16.30 TERVETULOA! Osoitteessa Saviontie 24, Kerava
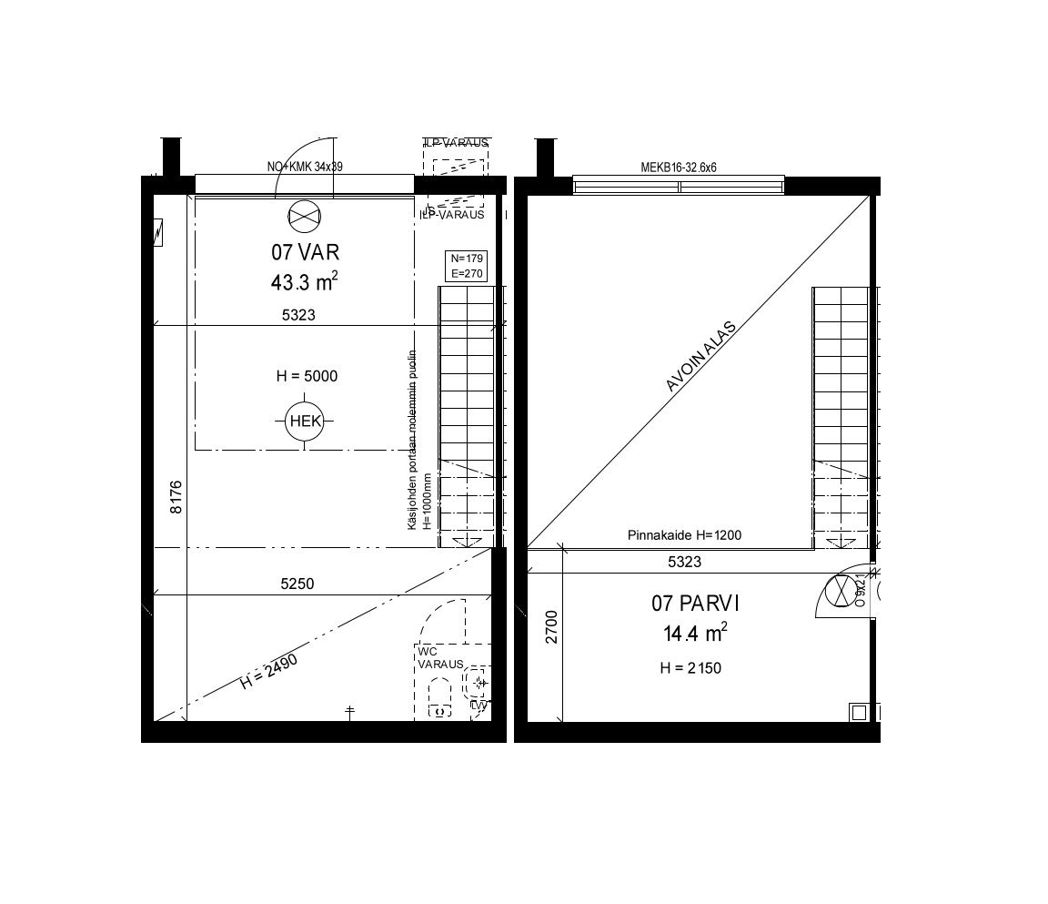
Tilan lattiapinta-ala 43 m² ja parven 14 m². Yhteispinta-ala 57 m².
Moottoroitu nosto-ovi erillisellä käyntiovella. Autolla sisään ajettava tila. Tilamitat: 8,17 (Pituus) 5,32 (Leveys) 5,00 (Korkeus). Ovimitat: 3,40 (Leveys) 3,90 (Korkeus).
Käyttötarkoitusesimerkkejä: - toimitila - varastotila - yrityksen työtarvikevarasto / kalustovarasto - kimppatalli - harrastetila - bändikämppä - autotalli - moottoripyörätalli - mönkijätalli. Tila ei sovellu autokorjaamoksi eikä autopesulaksi.
Tila on sähkölämmitteinen. Vuokralainen tekee tilaan oman sähkösopimuksen. Vesi- ja sähkömaksu kulutuksen mukaan. Vakuus kahden kuukauden vuokraa vastaava määrä. Haetaan pitkäaikaista vuokralaista. Yritysasiakkaille vuokraan lisätään alv 25,5%. Luottotiedot tarkistetaan.
Talliosake tuottaa joustavasti muunneltavia hallitiloja ympäri Suomen, joita yritykset ja yksityishenkilöt käyttävät tukikohtinaan erilaisille toiminnoille: yritys- ja liiketoimintaan, varastointiin sekä harrastuksiin.
Tilan lattiapinta-ala 43 m² ja parven 14 m². Yhteispinta-ala 57 m².
Moottoroitu nosto-ovi erillisellä käyntiovella. Autolla sisään ajettava tila. Tilamitat: 8,17 (Pituus) 5,32 (Leveys) 5,00 (Korkeus). Ovimitat: 3,40 (Leveys) 3,90 (Korkeus).
Käyttötarkoitusesimerkkejä: - toimitila - varastotila - yrityksen työtarvikevarasto / kalustovarasto - kimppatalli - harrastetila - bändikämppä - autotalli - moottoripyörätalli - mönkijätalli. Tila ei sovellu autokorjaamoksi eikä autopesulaksi.
Tila on sähkölämmitteinen. Vuokralainen tekee tilaan oman sähkösopimuksen. Vesi- ja sähkömaksu kulutuksen mukaan. Vakuus kahden kuukauden vuokraa vastaava määrä. Haetaan pitkäaikaista vuokralaista. Yritysasiakkaille vuokraan lisätään alv 25,5%. Luottotiedot tarkistetaan.
Talliosake tuottaa joustavasti muunneltavia hallitiloja ympäri Suomen, joita yritykset ja yksityishenkilöt käyttävät tukikohtinaan erilaisille toiminnoille: yritys- ja liiketoimintaan, varastointiin sekä harrastuksiin.
Vapautuu
Heti vapaa
Katutasossa
Ota yhteyttä
Talliosake Oy
Jani Sanevuori
Aluemyyntipäällikkö,
Etelä-Suomi, Vuokrauspalvelu, LVV
Näytä puhelinnumero
050 361 4814
Pyydä lisätietoa
