Videoesittely
Vuokrataan liiketilat - Helsinki
Bulevardi 32, Kamppi, 00120 Helsinki #10857512
Vuokrataan asuintalon kivijalassa oleva valoisa ja avara liiketila.
Osoite
Bulevardi 32, 00120 Helsinki
Tilatyyppi
Liiketilaa
114,5 m2
Kiinteistö
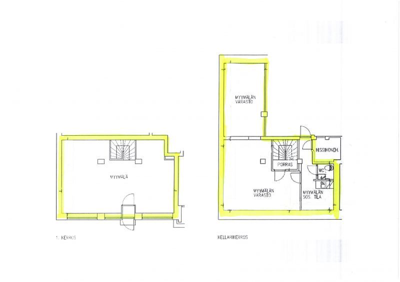
Tila jakaantuu katutason liiketilaan 53 m² ja alakerran varasto/työtilaan 61 m².
Alakerrassa on myös keittiö ja wc, sekä sisäänkäynti kiinteistön parkkihalliin.
Liiketilan sisäänkäynti Albertinkadun puolelta.
Tilaa ei vuokrata ravintola/kahvila käyttöön.
Alakerrassa on myös keittiö ja wc, sekä sisäänkäynti kiinteistön parkkihalliin.
Liiketilan sisäänkäynti Albertinkadun puolelta.
Tilaa ei vuokrata ravintola/kahvila käyttöön.
Sijainti
Kohde sijaitsee erinomaisella paikalla ydinkeskustan tuntumassa.
Ympäristö
Bulevardi tunnetaan lukuisista boutique liikkeistään, ravintoloistaan ja kahviloistaan. Lähettyvillä kolme hotellia ja Aleksanterinteatteri kulman takana.
Asiakasvirta on jatkuvaa.
Asiakasvirta on jatkuvaa.
Pysäköinti
Kadunvarsipysäköinti
Palvelut
Lukuisat lounaspaikat aivan kohteen vieressä, lähikauppa ja R- kioski muutaman sadan metrin päässä.
Kulkuyhteydet
Lähin bussi- ja raitiovaunupysäkki 40 metrin päässä.
Vapautuu
Heti
Katutasossa
Ota yhteyttä
Comreal Oy LKV
Joonas Nilsson
Näytä puhelinnumero
044 328 3425
Läkkisepänkuja 6, 00620 Helsinki
Comreal on valtakunnallinen, asiantunteva ja aktiivinen kiinteistöalan kumppani, joka palvelee sekä kiinteistönomistajia että toimitilojen käyttäjiä. Toimintamme ydin on yksinkertainen: tarjota erinomaista palvelua kaikille.
Pyydä lisätietoa
