Vuokrataan tuotantotilat - Järvenpää
Satukukanpolku 5, Satukallio, 04430 Järvenpää #10857442
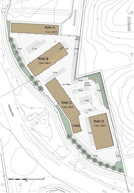
Monitoimitilaa Järvenpäässä, Pohjoisväylän varrella.
C-rakennuksessa on vapaana kaksi 145,5 m² monitoimi-/hallitilaa. Tilat voidaan vuokrata yhdessä 291 m² kokoisena tai erikseen. Jokaisen tilan perusvarusteluihin kuuluu erillinen toimisto- ja taukotila, valaistus, sähköt 16A 3-vaihepistorasialla ja valovirtapistokkeilla, vesipiste, wc-tila suihkuvarauksella, lattiakaivo hiekan- ja öljynerottimella, sähkökäyttöinen nosto-ovi, koneellinen ilmanvaihto lämmöntalteenotolla ja pysäköintipaikat tontilla. Kuvat ovat esimerkkejä kiinteistön samantyyppisistä tiloista.
Satukukanpolku 5 on monitoimitilakiinteistö, joka on valmistunut keväällä 2020. Se sijaitsee erinomaisella paikalla lähellä Lahden moottoritietä. Monitoimitilaa yhteensä noin 5425 m². Kiinteistön tilat on suunniteltu joustaviksi niin, että yksiköitä on helppo muunnella, jakaa ja yhdistellä. Niiden pohja- ja LVI-ratkaisut mahdollistavat muokattavuuden eri toimialojen käyttäjien tarpeisiin, esimerkiksi tilat voivat toimia tuotanto-, varasto- ja näyttelytiloina.
Kysy lisää numerosta 044 723 4700 tai info@bref.fi. Palvelumme on tilanhakijoille ilmainen.
Bureau Real Estate Finland Oy
Lars Sonckin kaari 16, 02600 Espoo
Näytä puhelinnumero
0447234700
Bureau Real Estate Finland Oy
https://www.bref.fi