Vuokrataan varastotilat - Kirkkonummi
KOY Sundsbergin Talliosake 2 TYÖTILA 19 – parvi, wc, suihkuvaraus, Sundsbergin yritystie 9, 02450 Kirkkonummi #10857397
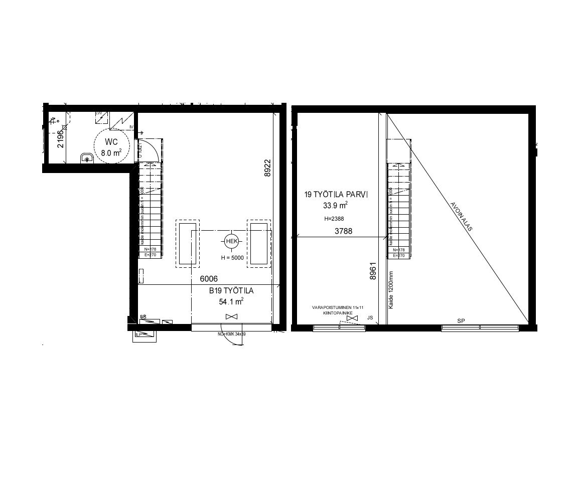
Suositulla Sundsbergin Talliosakkeelta kauan odotettua työtilaa! Tilassa 19 valmiina parvi sekä wc suihkuvarauksella.
Osoite
Sundsbergin yritystie 9, 02450 Kirkkonummi
Tilatyyppi
Varastotilaa
96 m2
Vuokra
1550 € / kk
Kiinteistö
KOY Sundsbergin Talliosake 2
Sijainti
Sundsbergin Talliosake 2 sijaitsee aivan Espoon länsirajan tuntumassa. Hallilta on näkyvyys Länsiväylälle ja erinomaisten kulkuyhteyksien ansiosta liikkuminen on helppoa niin omalla autolla kuin julkisilla. Alueen kehitys on huimassa nousukiidossa alueelle sijoittuvan Microsoftin datakeskuksen sekä muiden toimisto- ja tuotantotilojen rakennussuunnitelmien myötä.
Muuta
Vuokrataan vain yritysasiakkaille – vuokraan lisätään ALV 25,5%.
Moottoroitu nosto-ovi erillisellä käyntiovella. Autolla sisään ajettava tila. Tilamitat: 8,92 (Pituus) 6,00 (Leveys) 5,00 (Korkeus). Ovimitat: 3,40 (Leveys) 3,90 (Korkeus).
Käyttötarkoitusesimerkkejä: - toimitila - varastotila - yrityksen työtarvikevarasto / kalustovarasto - kimppatalli - harrastetila - bändikämppä - autotalli - moottoripyörätalli - mönkijätalli. Tila ei sovellu autokorjaamoksi eikä autopesulaksi.
Tila on sähkölämmitteinen. Vuokralainen tekee tilaan oman sähkösopimuksen. Vesi- ja sähkömaksu kulutuksen mukaan. Vakuus kahden kuukauden vuokraa vastaava määrä. Haetaan pitkäaikaista vuokralaista. Luottotiedot tarkistetaan.
Talliosake tuottaa joustavasti muunneltavia hallitiloja ympäri Suomen, joita yritykset ja yksityishenkilöt käyttävät tukikohtinaan erilaisille toiminnoille: yritys- ja liiketoimintaan, varastointiin sekä harrastuksiin.
Moottoroitu nosto-ovi erillisellä käyntiovella. Autolla sisään ajettava tila. Tilamitat: 8,92 (Pituus) 6,00 (Leveys) 5,00 (Korkeus). Ovimitat: 3,40 (Leveys) 3,90 (Korkeus).
Käyttötarkoitusesimerkkejä: - toimitila - varastotila - yrityksen työtarvikevarasto / kalustovarasto - kimppatalli - harrastetila - bändikämppä - autotalli - moottoripyörätalli - mönkijätalli. Tila ei sovellu autokorjaamoksi eikä autopesulaksi.
Tila on sähkölämmitteinen. Vuokralainen tekee tilaan oman sähkösopimuksen. Vesi- ja sähkömaksu kulutuksen mukaan. Vakuus kahden kuukauden vuokraa vastaava määrä. Haetaan pitkäaikaista vuokralaista. Luottotiedot tarkistetaan.
Talliosake tuottaa joustavasti muunneltavia hallitiloja ympäri Suomen, joita yritykset ja yksityishenkilöt käyttävät tukikohtinaan erilaisille toiminnoille: yritys- ja liiketoimintaan, varastointiin sekä harrastuksiin.
Vapautuu
Heti vapaa
Katutasossa
Näkyvällä paikalla
Ota yhteyttä
Talliosake Oy
Jani Sanevuori
Aluemyyntipäällikkö,
Etelä-Suomi, Vuokrauspalvelu, LVV
Näytä puhelinnumero
050 361 4814
Pyydä lisätietoa
