Vuokrataan varastotilat - Espoo
Revontulentie 8 A-B, Tapiola, Tapiola, 02100 Espoo #10857374
Osoite
Revontulentie 8 A-B, Tapiola, 02100 Espoo
Tilatyyppi
Varastotilaa
103,5 m2
Kiinteistö
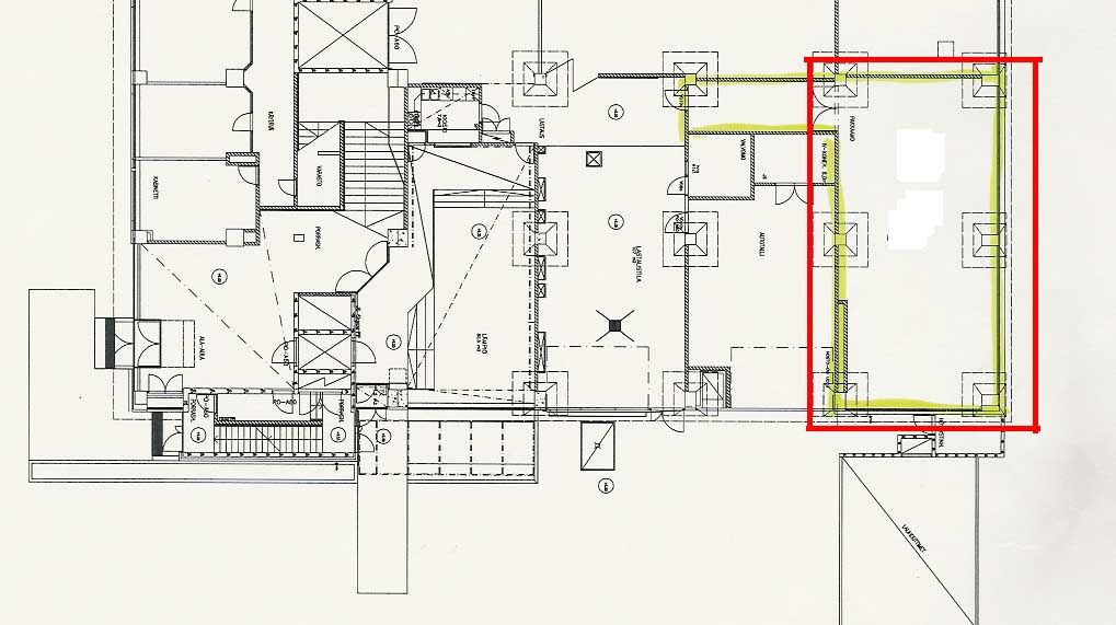
Vuokrataan Tapiolasta katutason varastotilaa 103,5 m². Tila tarkoitettu ainoastaan varastointiin.
Tila vapautuu 1.3.2026.
Tila vapautuu 1.3.2026.
Vapautuu
Heti
Energiatehokkuusluokka
Ei lain edellyttämää energiatodistusta
Katutasossa
Ota yhteyttä
Comreal Oy LKV
Tuula Leikas
Näytä puhelinnumero
040 531 3722
Läkkisepänkuja 6, 00620 Helsinki
Comreal on valtakunnallinen, asiantunteva ja aktiivinen kiinteistöalan kumppani, joka palvelee sekä kiinteistönomistajia että toimitilojen käyttäjiä. Toimintamme ydin on yksinkertainen: tarjota erinomaista palvelua kaikille.
Pyydä lisätietoa
