Vuokrataan toimistotilat - Helsinki
Porkkalankatu 7, Ruoholahti, 00180 Helsinki #10857241
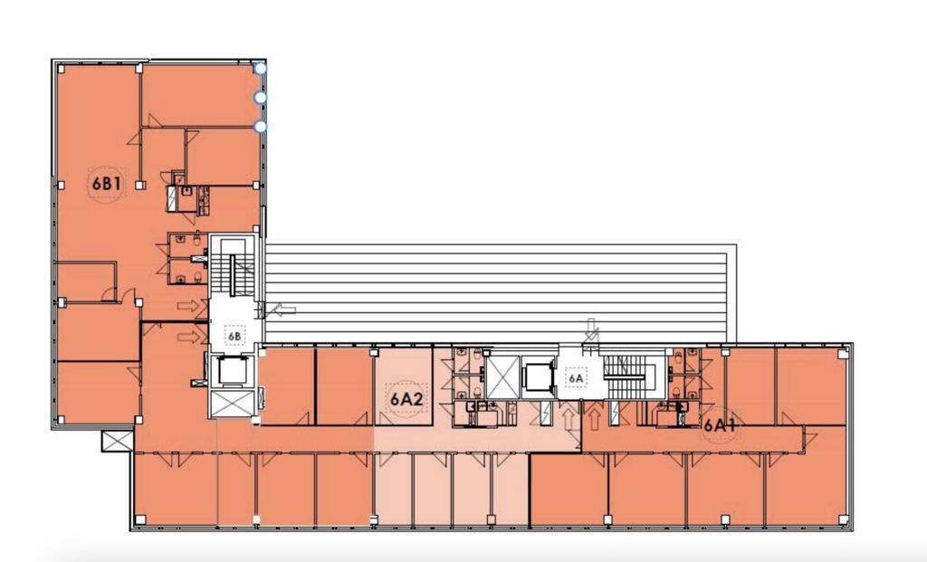
Vuokrattavana toimistotilaa Ruoholahdessa.
Tämä 358 m² kompakti toimisto sijaitsee kiinteistön 6. kerroksessa. Tila on huoneellista, ja siinä on oma keittiö ja wc:t. Vapautuminen 1.4.2026.
Porkkalankatu 7 on toimisto- ja liikekiinteistö, joka sijaitsee hyvällä paikalla Ruoholahdessa. Tilat ovat joustavasti muokattavissa uuden vuokralaisen tarpeita vastaavaksi. Kiinteistö on helposti saavutettavissa sekä omalla autolla että julkisella liikenteellä. Lähellä on Ruoholahden kauppakeskuksen monipuoliset palvelut. Metroasema sijaitsee lyhyen matkan päässä.
Kysy lisää numerosta 044 723 4700 tai info@bref.fi. Palvelumme on tilanhakijoille ilmainen.
Hissi
Bureau Real Estate Finland Oy
Lars Sonckin kaari 16, 02600 Espoo
Näytä puhelinnumero
0447234700
Bureau Real Estate Finland Oy
https://www.bref.fi