Vuokrataan toimistotilat - Helsinki
Aleksanterinkatu 9, Keskusta, 00100 Helsinki #10857230
Tasokasta toimistotilaa erinomaisella paikalla Helsingin ydinkeskustassa.
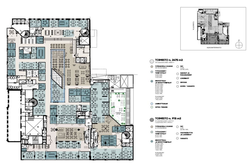
Tämä 3320 m² toimistotila sijaitsee kiinteistön 3. kerroksessa. Tila on tällä hetkellä raakapinnoilla, mutta se remontoidaan tulevan vuokralaisen tarpeiden mukaan korkeatasoiseksi toimistotilaksi. Sekä pohjaratkaisuun että materiaaleihin on nyt mahdollista päästä vaikuttamaan. Tila on avara ja valoisa, isojen ikkunoiden lisäksi tilan keskellä on myös kattoikkunoita, jotka tuovat tilaan lisää luonnonvaloa. Tilaan on tavarahissiyhteys. Toimiston yhteyteen on mahdollista rakentaa jopa 180 m² kokoinen terassi. Toimisto on mahdollista jakaa kahdelle tai kolmelle käyttäjälle esimerkiksi 1985 m², 703 ja 632 m² tai 2475 m² ja 915 m² kokoisiin osiin.
Aleksanterinkatu 9 on toimisto- ja liikekiinteistö, joka sijaitsee loistavalla paikalla Aleksanterinkadun ja Kluuvikadun kulmassa. Kauppakeskus Kluuvi sijaitsee samassa kiinteistössä, ja tarjoaa kattavat palvelut, monipuoliset lounasravintolavaihtoehdot sekä inspiroivan työympäristön. Helsingin yliopiston metroaseman sisäänkäynti sijaitsee aivan kiinteistön vieressä ja päärautatieasemallekin on vain kivenheitto. Kiinteistöllä on oma pysäköintihalli, josta on mahdollista vuokrata autopaikkoja.
Kysy lisää numerosta 044 723 4700 tai info@bref.fi. Palvelumme on tilanhakijoille ilmainen
Hissi
Bureau Real Estate Finland Oy
Lars Sonckin kaari 16, 02600 Espoo
Näytä puhelinnumero
0447234700
Bureau Real Estate Finland Oy
https://www.bref.fi