Vuokrataan toimistotilat - Helsinki
Aleksanterinkatu 9, Keskusta, 00100 Helsinki #10857228
Tasokasta toimistotilaa erinomaisella paikalla Helsingin ydinkeskustassa.
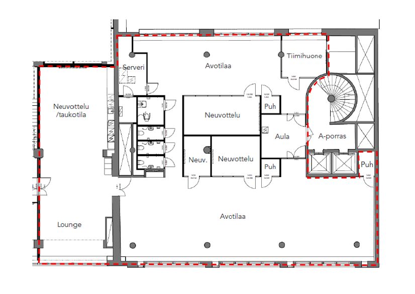
Tämä upea 485 m² toimisto sijaitsee kiinteistön 5. kerroksessa. Tila on pääosin avotilaa ja sisältää yhden isomman neuvottelutilan sekä muutaman pienen huoneen. Lisäksi tilassa on omat keittiö- ja wc-tilat. Tila on muuttovalmis.
Aleksanterinkatu 9 on toimisto- ja liikekiinteistö, joka sijaitsee loistavalla paikalla Aleksanterinkadun ja Kluuvikadun kulmassa. Kauppakeskus Kluuvi sijaitsee samassa kiinteistössä, ja tarjoaa kattavat palvelut, monipuoliset lounasravintolavaihtoehdot sekä inspiroivan työympäristön. Helsingin yliopiston metroaseman sisäänkäynti sijaitsee aivan kiinteistön vieressä ja päärautatieasemallekin on vain kivenheitto. Kiinteistöllä on oma pysäköintihalli, josta on mahdollista vuokrata autopaikkoja.
Kysy lisää numerosta 044 723 4700 tai info@bref.fi. Palvelumme on tilanhakijoille ilmainen
Bureau Real Estate Finland Oy
Lars Sonckin kaari 16, 02600 Espoo
Näytä puhelinnumero
0447234700
Bureau Real Estate Finland Oy
https://www.bref.fi