Vuokrataan liiketilat - Helsinki
Simonkatu 9, 00100 Helsinki #10857217
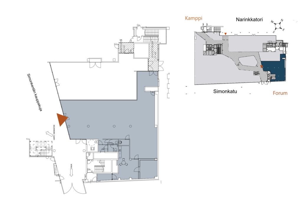
Vuokrataan 266 m2 liiketila, joka sijaitsee Forumin ja Kampin kauppakeskusten yhdistävälla vilkkaalla kauppakujalla. Tilassa voi toimia myös arvonlisäveroton toimija kuten lääkäriasema, tila ei kuitenkaan sovellu ravintolatoimintaan tai ruoanvalmistusta edellyttävään käyttöön.
Simonkentän kauppakujan vilkas ohikulkuvirta ja Narinkkatorin läheisyys tarjoavat erinomaiset mahdollisuudet erilaiselle liiketoiminnalle. Kampin ja Forumin kauppakeskusten läheisyys lukuisine kauppoineen, ravintoloineen ja palveluineen lisäävät kohteen vetovoimaa.
Liiketilojen vuokraus ja tiedustelut: C&W Retail Services, puh. 010 836 8418, retail.fi@cushwake.com.
Helsingin keskustassa sijaitseva Simonkentän Hotellikiinteistö on optimaalisella sijainnilla, vain minuutin kävelymatkan päässä niin Kampin Kauppakeskuksesta kuin Kauppakeskus Forumistakin. Talosta pääsee sisätilojen kautta kävellen suoraan Kampin keskukseen ja Forumiin. Saavutettavuus on erinomainen ja autoilijoita palvelevat keskustan pysäköintilaitokset. Vilkas kauppakuja on uusittu valoisaksi ja kutsuvaksi.
