Vuokrataan varastotilat, työtilat, autotalli/-hallitilat - Helsinki
Yrityspiha 1, Konala, 00390 Helsinki #10857215
Hallitila vuokrattavana hyvällä sijainnilla Konalassa! Vuokra 499 €/kk, alv-vapaa tila
Osoite
Yrityspiha 1, 00390 Helsinki
Tilatyyppi
Varastotilaa
28,7 m2
Työtilaa
28,7 m2
Autotalli/-hallitilaa
28,7 m2
Yhteensä
28,7 m2
Pohjapiirros
Virtuaaliesittely
Vuokra
499 €/kk, alv-vapaa
Muuta
Vuokrataan keskeisellä sijainnilla Helsingin Konalassa uudenveroinen hallitila moneen varastointitarpeeseen.
Tila ei sovellu autopesulaksi tai autokorjaamoksi.
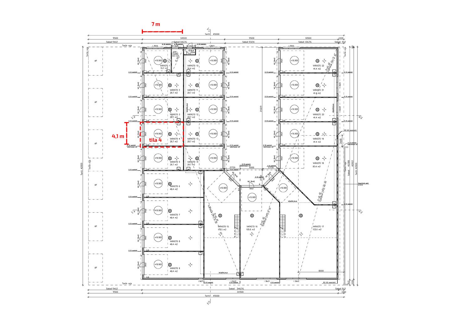
Halli on pinta-alaltaan 28,7 m² ja sen syvyys on noin 7 metriä ja leveys 4,1 m. Tilan varusteluun kuuluu korkea nosto-ovi (L3,6 m x K4,2 m), voimavirta, lattiakaivo hiekan ja öljyn erotuksella, vesipiste sekä wc-varaus. Pohjakuvassa halli on merkittynä numerolla 4.
Tiloissa on sähkölämmitys, jonka vuokralainen maksaa. Lämmitys toteutuu sähköpatterilla. Hallitilan käyttäjä vastaa omasta jätehuollosta.
Asfaltoidut piha-alueet ja alueilla kameravalvonta.
Hyvällä sijainnilla aivan Kehä I ja Vihdintien kupeessa.
Vuokraa nyt hyvä hallitila!
Kohdetiedot
Sijainti
Osoite: Yrityspiha 1, 00390 Helsinki
Kaupunginosa: Konala
Ympäristö: Teollisuutta, Motonet, Ristikko, Varusteleka…
Rakennus/huoneisto
Pinta-ala: Noin 28,7 m²
Kiinteistötyyppi: Varastohallirakennus
Rakennusvuosi: 2018
Energiatodistus: A
Huoneistoselitelmä: Hallitila
Kunto ja varusteet: Hyväkuntoinen tila, korkea nosto-ovi, voimavirta, lattiakaivo, vesipiste, wc-varaus
Lämmitys: Sähkölämmitys
Vapautuu: 1.5.2026 (tai mahdollisesti nopeammin)
Pysäköinti: Pihassa (vain tilan edessä) ja kadulla
Vuokrahinta ja kulut
Kuukausivuokra: 499 €/kk, alv-vapaa
Sähkö: Mittauksen mukaan
Vesimaksu: Mittauksen mukaan
Lämmitys: Sähköllä vuokralaisen lukuun
Jätehuolto: Vuokralainen vastaa omasta jätehuollostaan
Auraus: Sisältyy vuokraan (koneellinen)
Muut ehdot: Minimisopimuskausi 12 kk, vakuus 3 kk:n vuokraa vastaava summa, luottotietojen on oltava kunnossa
Tila ei sovellu autopesulaksi tai autokorjaamoksi.
Halli on pinta-alaltaan 28,7 m² ja sen syvyys on noin 7 metriä ja leveys 4,1 m. Tilan varusteluun kuuluu korkea nosto-ovi (L3,6 m x K4,2 m), voimavirta, lattiakaivo hiekan ja öljyn erotuksella, vesipiste sekä wc-varaus. Pohjakuvassa halli on merkittynä numerolla 4.
Tiloissa on sähkölämmitys, jonka vuokralainen maksaa. Lämmitys toteutuu sähköpatterilla. Hallitilan käyttäjä vastaa omasta jätehuollosta.
Asfaltoidut piha-alueet ja alueilla kameravalvonta.
Hyvällä sijainnilla aivan Kehä I ja Vihdintien kupeessa.
Vuokraa nyt hyvä hallitila!
Kohdetiedot
Sijainti
Osoite: Yrityspiha 1, 00390 Helsinki
Kaupunginosa: Konala
Ympäristö: Teollisuutta, Motonet, Ristikko, Varusteleka…
Rakennus/huoneisto
Pinta-ala: Noin 28,7 m²
Kiinteistötyyppi: Varastohallirakennus
Rakennusvuosi: 2018
Energiatodistus: A
Huoneistoselitelmä: Hallitila
Kunto ja varusteet: Hyväkuntoinen tila, korkea nosto-ovi, voimavirta, lattiakaivo, vesipiste, wc-varaus
Lämmitys: Sähkölämmitys
Vapautuu: 1.5.2026 (tai mahdollisesti nopeammin)
Pysäköinti: Pihassa (vain tilan edessä) ja kadulla
Vuokrahinta ja kulut
Kuukausivuokra: 499 €/kk, alv-vapaa
Sähkö: Mittauksen mukaan
Vesimaksu: Mittauksen mukaan
Lämmitys: Sähköllä vuokralaisen lukuun
Jätehuolto: Vuokralainen vastaa omasta jätehuollostaan
Auraus: Sisältyy vuokraan (koneellinen)
Muut ehdot: Minimisopimuskausi 12 kk, vakuus 3 kk:n vuokraa vastaava summa, luottotietojen on oltava kunnossa
Vapautuu
01.05.2026
Rakennusvuosi
2018
Katutasossa
Näkyvällä paikalla
Ota yhteyttä
Tilat.fi
KTM, LKV Antti Soivio
Näytä puhelinnumero
0400 446 553
OTM, LKV Riikka Tuominen
Näytä puhelinnumero
0400 551 790
KTM, LKV Maria-Sofia Puhakka
Näytä puhelinnumero
0400-150330
MBA, LKV Susanne Wallenius
Näytä puhelinnumero
0400-128877
LKV Tilat.fi Oy on toimitilojen välitykseen erikoistunut yritys.
http://www.tilat.fiPyydä lisätietoa
