Vuokrataan toimistotilat - Helsinki
Bulevardi 6 A, Keskusta, 00120 Helsinki #10857211
Näyttävä Bulevardi 6 on rakennettu jo vuonna 1888 ja sen on suunnitellut arkkitehti Theodor Granstedt. Korttelissa on toiminut vuosien saatossa niin tyttökoulu kuin rautakauppakin. Nyt kiinteistö on monipuolinen liikerakennus (toimistoja, ravintoloja, juhlatila, hotelli yms.), jossa on paljon tyytyväisiä ja pitkäaikaisia vuokralaisia.
Osoite
Bulevardi 6 A, 00120 Helsinki
Tilatyyppi
Toimistotilaa
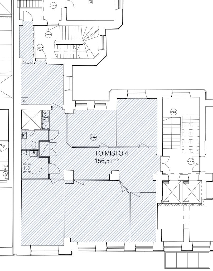
156 m2
Pohjapiirros
Sijainti
Lähistöllä sijaitsee kaikki mahdollinen – pysäköinti, julkinen liikenne, ravintolat, kahvilat, ruokakaupat, elokuvat, teatterit ja tavaratalot.
Vapautuu
Kysy
Energiatehokkuusluokka
Ei lain edellyttämää energiatodistusta
Hissi
Ota yhteyttä
Croisette Real Estate Partner
Erottajankatu 5 A 6, 00130 Helsinki
Näytä puhelinnumero
+358 400 585 857
Croisette Vuokraus
Näytä puhelinnumero
+358400585857
Pyydä lisätietoa
