Vuokrataan varastotilat - Jyväskylä
KOY Appiukon Talliosake tila 16 – wc, ilmalämpöpumppu, Anopintie 10, 40530 Jyväskylä #10857206
Suositulta Appiukon Talliosakkeelta monikäyttöinen, ikkunallinen, valoisa tilava ja leveä kulmavarasto, autotalli, harraste-, toimitila 16.
Osoite
Anopintie 10, 40530 Jyväskylä
Tilatyyppi
Varastotilaa
54 m2
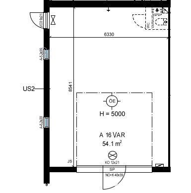
Pohjapiirros
Vuokra
620 € / kk
Kiinteistö
KOY Appiukon Talliosake
Sijainti
Appiukon Talliosake sijaitsee Keljonkankaan Eteläportin teollisuusalueen ja Kauramäen asuinalueen välissä. Moottoritielle ja Keljonkankaan ABC:lle minuutin ajomatka. Keljon marketeille ja Muuramen Shellille noin 5 min ja Jyväskylän keskustan palvelut saatavilla vajaan 10 minuutin ajomatkan päässä. Hyvät bussiyhteydet. Tästä on helppo lähteä ja tähän on helppo tulla mistä päin tahansa.
Muuta
Vain yksi tila vuokrattavana. Harvoin tarjolla oleva päätytila.
WC ja Ilmalämpöpumppu takaavan mukavat olosuhteet säällä kuin säällä. Tilan käyttömahdollisuuksia parantava erillinen käyntiovi hallin päätyseinällä.
Erinomainen tukikohta yritykselle tai kimppatila yksityiseen käyttöön.
Moottoroitu nosto-ovi erillisellä käyntiovella. Autolla sisään ajettava tila. Tilamitat: 8,50 (Pituus) 6,30 (Leveys) 5,00 (Korkeus). Ovimitat: 4,00 (Leveys) 3,90 (Korkeus).
Käyttötarkoitusesimerkkejä: - toimitila - varastotila - yrityksen työtarvikevarasto / kalustovarasto - kimppatalli - harrastetila - bändikämppä - autotalli - moottoripyörätalli - mönkijätalli. Tila ei sovellu autokorjaamoksi eikä autopesulaksi.
Tila on sähkölämmitteinen. Vuokralainen tekee tilaan oman sähkösopimuksen. Vesi- ja sähkömaksu kulutuksen mukaan. Vakuus kahden kuukauden vuokraa vastaava määrä. Haetaan pitkäaikaista vuokralaista. Yritysasiakkaille vuokraan lisätään alv 25,5%. Luottotiedot tarkistetaan.
Talliosake tuottaa joustavasti muunneltavia hallitiloja ympäri Suomen, joita yritykset ja yksityishenkilöt käyttävät tukikohtinaan erilaisille toiminnoille: yritys- ja liiketoimintaan, varastointiin sekä harrastuksiin.
WC ja Ilmalämpöpumppu takaavan mukavat olosuhteet säällä kuin säällä. Tilan käyttömahdollisuuksia parantava erillinen käyntiovi hallin päätyseinällä.
Erinomainen tukikohta yritykselle tai kimppatila yksityiseen käyttöön.
Moottoroitu nosto-ovi erillisellä käyntiovella. Autolla sisään ajettava tila. Tilamitat: 8,50 (Pituus) 6,30 (Leveys) 5,00 (Korkeus). Ovimitat: 4,00 (Leveys) 3,90 (Korkeus).
Käyttötarkoitusesimerkkejä: - toimitila - varastotila - yrityksen työtarvikevarasto / kalustovarasto - kimppatalli - harrastetila - bändikämppä - autotalli - moottoripyörätalli - mönkijätalli. Tila ei sovellu autokorjaamoksi eikä autopesulaksi.
Tila on sähkölämmitteinen. Vuokralainen tekee tilaan oman sähkösopimuksen. Vesi- ja sähkömaksu kulutuksen mukaan. Vakuus kahden kuukauden vuokraa vastaava määrä. Haetaan pitkäaikaista vuokralaista. Yritysasiakkaille vuokraan lisätään alv 25,5%. Luottotiedot tarkistetaan.
Talliosake tuottaa joustavasti muunneltavia hallitiloja ympäri Suomen, joita yritykset ja yksityishenkilöt käyttävät tukikohtinaan erilaisille toiminnoille: yritys- ja liiketoimintaan, varastointiin sekä harrastuksiin.
Vapautuu
01.04.2026
Katutasossa
Ota yhteyttä
Talliosake Oy
Jaakko Laitinen
Aluemyyntipäällikkö Itä- ja Keski – Suomi, Päijät-Häme
Näytä puhelinnumero
040 903 0706
Pyydä lisätietoa
