Vuokrataan liiketilat, tuotantotilat, varastotilat, muut tilat - Kuopio
Kallantie 12, 70340 Kuopio #10857179
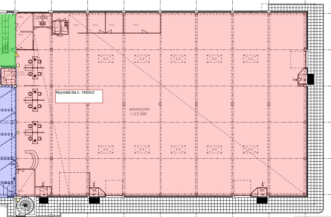
Vuokrattavana laaja ja monikäyttöinen toimitilakokonaisuus Kuopiossa Kallantiellä. Kallantie 12 tarjoaa useita erikokoisia ja eri käyttötarkoituksiin soveltuvia tiloja, jotka voidaan vuokrata yhdessä tai erikseen.
Kohde soveltuu erinomaisesti yrityksille, jotka tarvitsevat:
liiketilaa tai myymälän
autokorjaamo- tai huoltotilaa
varasto- ja logistiikkatilaa
toimisto- ja henkilöstötiloja
Tilat tukevat teknistä, kaupallista ja palveluliiketoimintaa saman kiinteistön sisällä.
Kysy lisää ja sovi näytöstä.
Katutasossa
Näkyvällä paikalla

Fine LKV
Minna Moisio
Toimitilavuokraus, LKV
Näytä puhelinnumero
0505417349
minna@finelkv.fi
Leväsentie 2, 70700 Kuopio
Yliopistonkatu 28, 40100 Jyväskylä
Toimin kaupallisena managerina ja toimitilavuokraajana, otathan yhteyttä jos mietit mahdollisia muutostöitä tai esillä olevista toimitiloista ei löydy sitä mitä etsit. Selvitetään muut tila mahdollisuudet. Asiakaslähtöisyys on minulle tärkeää sekä asioiden sujuvuus. Ota yhteyttä, mielelläni autan sinua.