Vuokrataan toimistotilat - Espoo
Tarvonsalmenkatu 17, Perkkaa, 02600 Espoo #10857110
Derby Business Park tarjoaa yrityksille muuntojoustavaa, tehokasta ja modernia toimitilaa sekä monipuoliset palvelut.
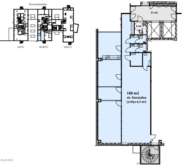
Tämä 188m² toimistotila sijaitsee Spurtti-talon 4. kerroksessa. Toimistossa on sekä huoneita että avotilaa. Tilaan kuuluvat myös omat keittiö- ja wc-tilat.
Kiinteistössä on aulapalvelu, tasokas lounasravintola, kuntosali ja vuokrattavia neuvottelutiloja. Talon ympäristöystävällisyyteen on kiinnitetty erityistä huomiota. Kiinteistöllä on LEED Platinum -sertifikaatti. Derby Business Parkissa on erillinen pysäköintitalo, jossa on myös sähkölatauspisteitä, jonka lisäksi kiinteistön pihalla on asiakaspaikkoja.
Kysy lisää numerosta 044 723 4700 tai info@bref.fi. Palvelumme on tilanhakijoille ilmainen.
Hissi
Bureau Real Estate Finland Oy
Lars Sonckin kaari 16, 02600 Espoo
Näytä puhelinnumero
0447234700
Bureau Real Estate Finland Oy
https://www.bref.fi