Vuokrataan toimistotilat - Kempele
Professorintie 9, Vihiluoto, 90440 Kempele #10857100
Osoite
Professorintie 9, 90440 Kempele
Tilatyyppi
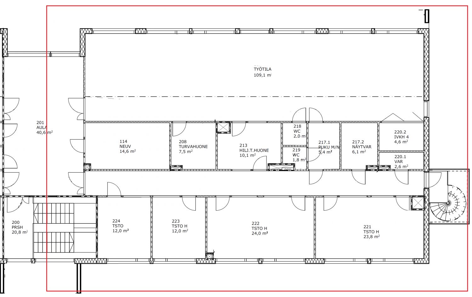
Toimistotilaa
296 m2
Muuta
Näkyvältä paikalta vuokrataan laadukasta toimistotilaa.
Tila on varusteltu jäähdytyksellä ja talossa on tehokas ilmanvaihto. Tila koostuu eri kokoisista työhuoneista ja -tiloista, muutostöitä voidaan toteuttaa. Tila sijaitsee talon 2. kerroksessa. Lämmitys on maalämmössä joka kuuluu vuokraan. Tiloissa on sähkölukot ja kulunvalvonta. Autopaikkoja on hyvin pihalla, tarvittaessa myös katospaikkoja järjestettävissä.
Lentokentäntien varrella yrityksesi näkyvyys on taattu ja paikalle on helppo tulla. Kulkuyhteydet ovat erinomaiset, sillä Oulun keskustaan ajaa vartissa, lentokentälle reilu 5 minuutissa sekä hyvä bussiyhteys kulkee Lentokentäntietä. Alueella toimii paljon yrityksiä ja lounaspaikkoja on lähellä.
Tilat soveltuvat ja ovat muokattavissa hyvin monenlaiseen käyttöön. Myös halli-/tuotantotilaa voi tiedustella vuokrattavaksi samassa yhteydessä. Olethan yhteydessä niin käydään katsomassa tiloja!
Lisätiedot 040 5400 672 tai joni.romppainen@kiinteistotahkola.fi.
Eikö tämä ole sopiva? Kysy muita vaihtoehtojamme!
Tila on varusteltu jäähdytyksellä ja talossa on tehokas ilmanvaihto. Tila koostuu eri kokoisista työhuoneista ja -tiloista, muutostöitä voidaan toteuttaa. Tila sijaitsee talon 2. kerroksessa. Lämmitys on maalämmössä joka kuuluu vuokraan. Tiloissa on sähkölukot ja kulunvalvonta. Autopaikkoja on hyvin pihalla, tarvittaessa myös katospaikkoja järjestettävissä.
Lentokentäntien varrella yrityksesi näkyvyys on taattu ja paikalle on helppo tulla. Kulkuyhteydet ovat erinomaiset, sillä Oulun keskustaan ajaa vartissa, lentokentälle reilu 5 minuutissa sekä hyvä bussiyhteys kulkee Lentokentäntietä. Alueella toimii paljon yrityksiä ja lounaspaikkoja on lähellä.
Tilat soveltuvat ja ovat muokattavissa hyvin monenlaiseen käyttöön. Myös halli-/tuotantotilaa voi tiedustella vuokrattavaksi samassa yhteydessä. Olethan yhteydessä niin käydään katsomassa tiloja!
Lisätiedot 040 5400 672 tai joni.romppainen@kiinteistotahkola.fi.
Eikö tämä ole sopiva? Kysy muita vaihtoehtojamme!
Vapautuu
Heti vapaa
Rakennusvuosi
2019
Kerros
2
Ota yhteyttä
Kiinteistö-Tahkola Oy
Lumijoentie 1, 90400 Oulu
Näytä puhelinnumero
0207 480 250
Joni Romppainen
Näytä puhelinnumero
0405400672
Pyydä lisätietoa
