Vuokrataan toimistotilat - Espoo
Lars Sonckin Kaari 10-16, Leppävaara, 02600 Espoo #10857098
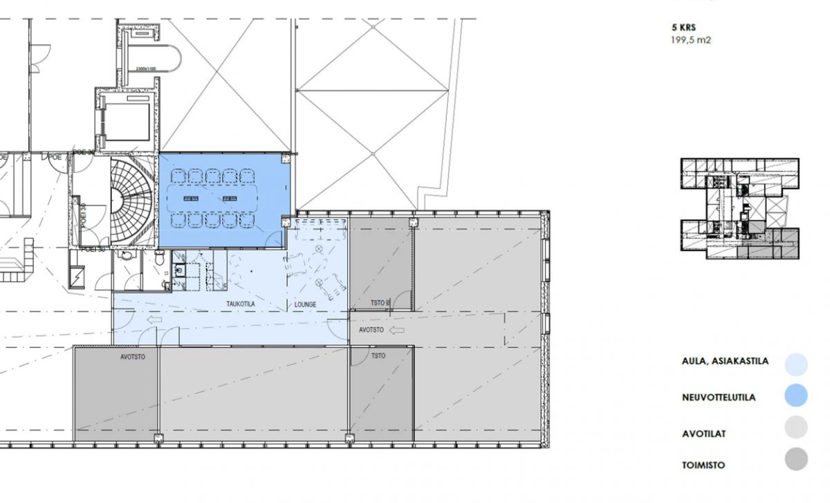
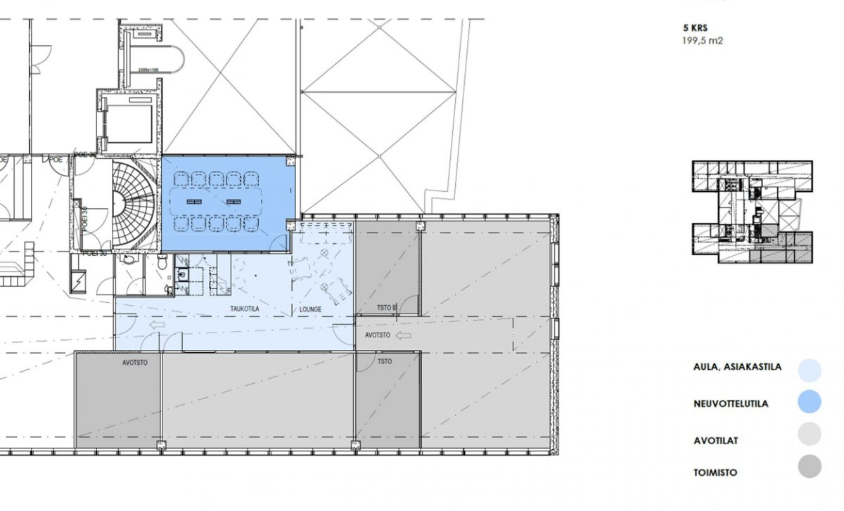
Vuokrataan muuttovalmis 5.kerroksen toimistotila. Hyväkuntoisessa toimistossa on avotilaa, neuvotteluhuone, kolme työhuonetta ja keittiö- ja taukotilat.
Stella Business Park tarjoaa vuokralaisilleen monipuoliset palvelut kuten mm. aulapalvelut, vuokrattavia kokoushuoneita, kuntosalin, lounasravintolan ja postituspalvelut.
Parkkipaikkoja vuokrattavissa runsaasti kahdesta parkkitalosta.
Leppävaaran linja-autoterminaali ja juna-asema kävelymatkan päässä.
Lisätietoja soita 020 730 4530 tai info@repoint.fi. Palvelumme on tilanhakijalle ilmainen.
Hissi
Repoint Toimitilat Oy
Itälahdenkatu 22 B, 00210 Helsinki
Näytä puhelinnumero
020 730 4530
Lisätietoja soita Näytä puhelinnumero 020 730 4530 tai info@repoint.fi
https://repoint.fi/