Vuokrataan tuotantotilat, varastotilat - Espoo
Koskelonkuja 1, Koskelo, 02940 Espoo #10857067
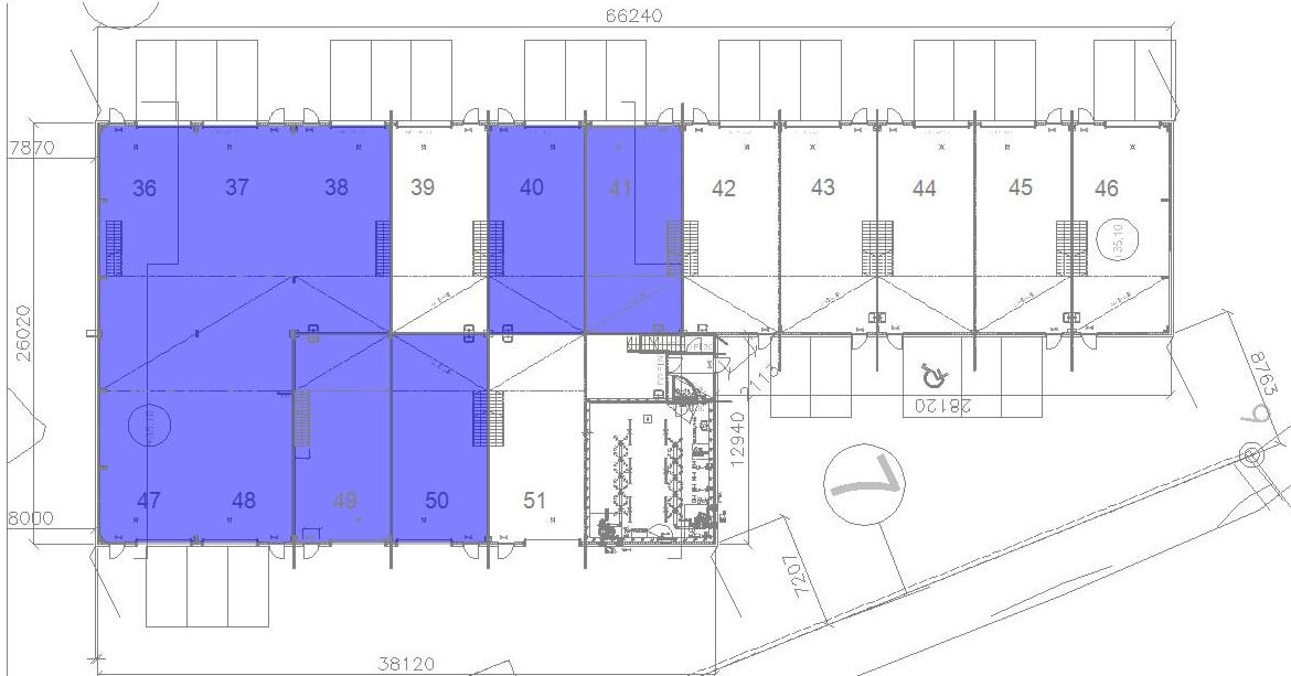
Vuokrattavana sisään ajettava varasto-/tuotantotila. Tilassa nosto-ovi, lattiakaivot, voimapiste sekä vesipiste.
Osoite
Koskelonkuja 1, 02940 Espoo
Tilatyyppi
Tuotantotilaa
686 m2
Varastotilaa
686 m2
Yhteensä
686 m2
Kiinteistö
Vuokrattavana sisään ajettava varasto-/tuotantotila. Tilassa nosto-ovi, öljynerotuskaivo, voimapiste sekä vesipiste. Tuotantotilojen yhteydessä on 2.krs toimistoparvi, jossa sijaitsevat myös oma keittiö sekä sosiaalitilat.
Sijainti
Koskelo, Espoo
Pysäköinti
Kiinteistön pihalla.
Kulkuyhteydet
-Bussi
-Oma auto
-Oma auto
Vapautuu
01.04.2026
Kerros
1
Energiatehokkuusluokka
Ei lain edellyttämää energiatodistusta
Näkyvällä paikalla
Ota yhteyttä
REALIUM OY LKV
Tammasaarenkatu 1, 00180 Helsinki
Vaihde:
Näytä puhelinnumero
010 326 346
Tuomo Mäkelä
tuomo.makela@realium.fi
p.
Näytä puhelinnumero
044 050 1158
Joel Keto
joel.keto@realium.fi
p.
Näytä puhelinnumero
045 317 0330
KAIKKI TILAVAIHTOEHDOT KERRALLA!
SOITA - MEILAA JA TILAA NÄYTTÖ!
Ilmainen palvelu tilanhakijoille.
Kartoitamme parhaat tilavaihtoehdot.
Kaikki kohteet eivät ole netissä.
Pyydä lisätietoa
