Vuokrataan toimistotilat - Helsinki
Valimotie 21, Pitäjänmäki, 00380 Helsinki #10857050
Tehokas ja tilava toimistohuoneisto vapaana Pitäjänmäellä, Valimon aseman vieressä. Valimontie 21 on uudistettu kokonaisvaltaisesti ja muuttovalmiissa kiinteistössä on mm. oma kahvila ja premiumtason lounasravintola. Tavarahissit ja lastauslaiturit tuovat lisäarvoa tähän modernisoituun kiinteistöön joka remontoidaan käyttäjän tarpeet ja toiveet huomioiden. Ota yhteyttä ja sovi esittely, palvelumme on tilanhakijoille ilmainen.
Osoite
Valimotie 21, 00380 Helsinki
Tilatyyppi
Toimistotilaa
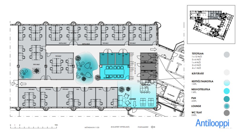
542 m2
Tilajako
Jaettavissa
Pohjapiirros
Kiinteistö
Kiinteistö Valimo 21:ssä on aulapalvelu, neuvottelumaailma, auditorio n. 150:lle hengelle, lounasravintola, cateringtarjoilu, kahvipaahtimo, polkupyöräparkki ja pyöräilijöille pukuhuoneet, ym.
Sijainti
Pitäjänmäki
Pysäköinti
Autohallissa ja pihalla.
Kulkuyhteydet
Bussipysäkki n. 100 metriä, juna-asemalle n. 300 metriä.
Vapautuu
Heti
Kerros
5 / 6
Energiatehokkuusluokka
Ei lain edellyttämää energiatodistusta
Näkyvällä paikalla
Jaettavissa
Hissi
Lastauslaituri
Ota yhteyttä
Senaatin Notariaatti Oy LKV
Lämmittäjänkatu 4 A
FIN-00880 Helsinki
Tel:
Näytä puhelinnumero
+358 9 7745 100
Pyydä lisätietoa
