Vuokrataan toimistotilat, tuotantotilat, muut tilat - Helsinki
Tallberginkatu 2, Ruoholahti, 00180 Helsinki #10857046
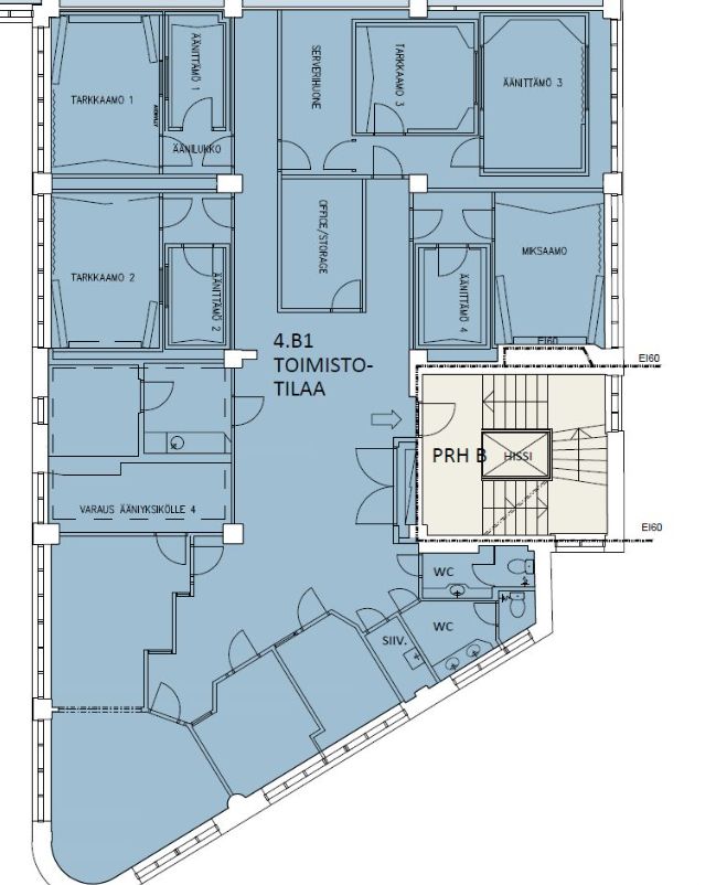
Tehokas huonekonttori 4. kerroksessa. Toimiston aiemman käyttötarkoituksen mukaan soveltunut puheen äänitysstudiotoimintaan. Tila sijaitsee hissillisessä B-rapussa 4. kerroksessa. Lauttasaaren sillan kupeessa sijaitseva Tallbergintalo toimii käsi kädessä viereisen toimistorakennuksen, Itämerentalon kanssa. Yhteiseen lounasravintolaan ja vastaanottoon pääsee kätevästi sisäkautta. Ota yhteyttä ja sovi esittely, vuokrauspalvelumme on tilanhakijoille maksuton.
Osoite
Tallberginkatu 2, 00180 Helsinki
Tilatyyppi
Toimistotilaa
282 m2
Tuotantotilaa
282 m2
Muuta tilaa
282 m2
Yhteensä
282 m2
Pohjapiirros
Kiinteistö
Tallbergintalo sijaitsee Ruoholahdessa Kaapelitehtaan vieressä erinomaisten kulkuyhteyksien varrella.
Sijainti
Ruoholahti
Ympäristö
Kauppakeskus Ruoholahti palveluineen on 5 minuutin kävelyn päässä.
Pysäköinti
Kiinteistön ympäristössä on maksullisia pysäköintipaikkoja. Kauppakeskus Ruoholahden parkkihalli on kävelyetäisyydellä.
Palvelut
Lounasravintola
Vapautuu
Heti
Kerros
4 / 7
Energiatehokkuusluokka
E2007
Näkyvällä paikalla
Ota yhteyttä
Senaatin Notariaatti Oy LKV
Lämmittäjänkatu 4 A
FIN-00880 Helsinki
Tel:
Näytä puhelinnumero
+358 9 7745 100
Pyydä lisätietoa
