Vuokrataan toimistotilat - Helsinki
Kaisaniemenkatu 1, Helsinki, Suomi, Keskusta, 00100 Helsinki #10857043
Tämä kohde Helsingin ydinkeskustassa, vain muutaman askeleen päässä Rautatieasemasta ja keskellä maan kattavimpia palveluja, tarjoaa moderneja ja joustavia toimitiloja merkittävässä arvokiinteistössä.
Osoite
Kaisaniemenkatu 1, Helsinki, Suomi, 00100 Helsinki
Tilatyyppi
Toimistotilaa
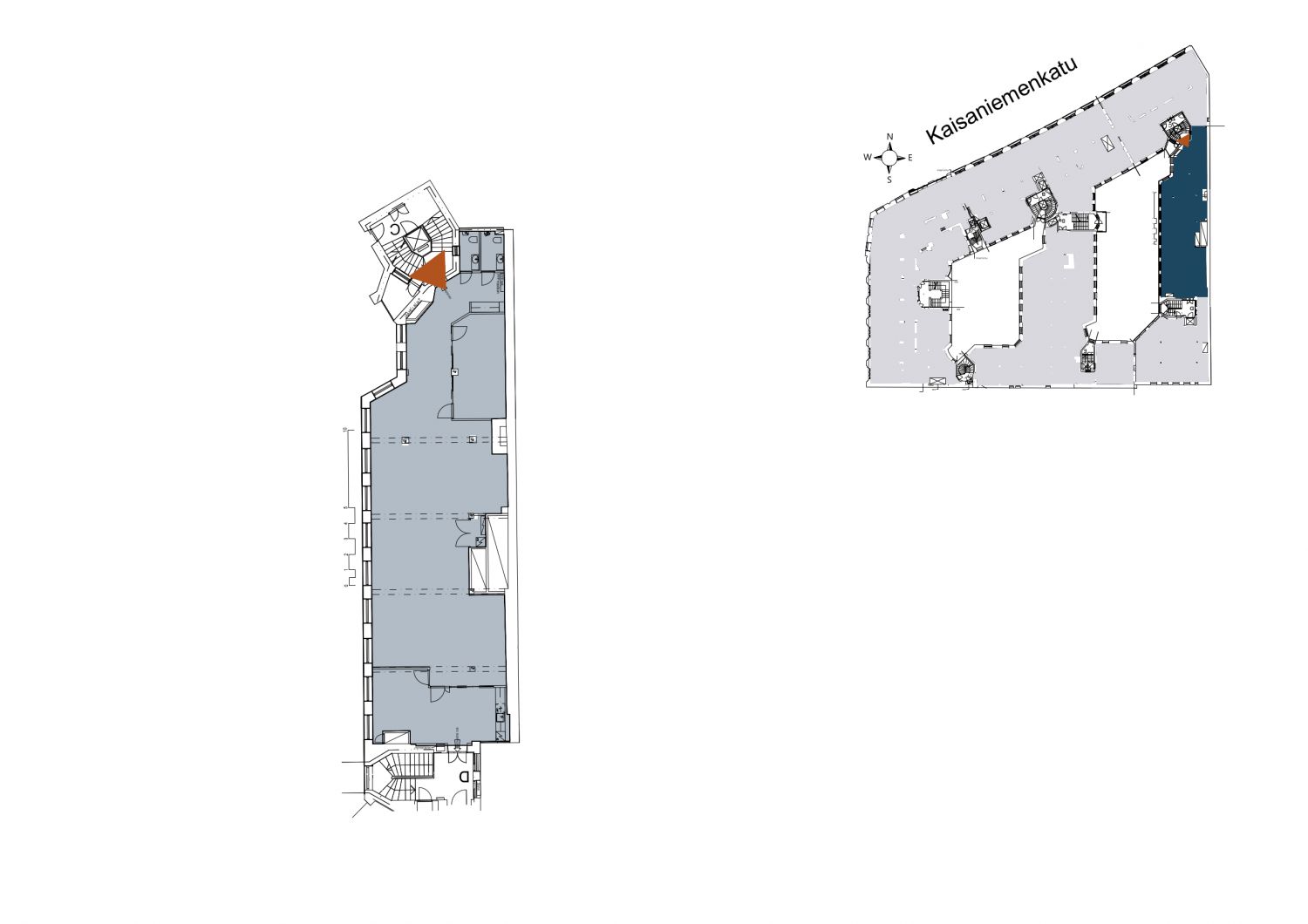
237 m2
Kiinteistö
Mikonkatu 13
Ympäristö
Metroasema: 200 m, Juna-asema: 250 m, Raitiovaunupysäkki: 20 m, Bussipysäkki: 100 m, Lentoasema: 19,2 km
Kulkuyhteydet
Valokuitu
Muuta
Kaunis tehokas ja siisti toimistotila rauhallisella sisäpihalla. Vapautuu 1.9.2026.
Tämä kohde Helsingin ydinkeskustassa, vain muutaman askeleen päässä Rautatieasemasta ja keskellä maan kattavimpia palveluja, tarjoaa moderneja ja joustavia toimitiloja merkittävässä arvokiinteistössä.
Tämä kohde Helsingin ydinkeskustassa, vain muutaman askeleen päässä Rautatieasemasta ja keskellä maan kattavimpia palveluja, tarjoaa moderneja ja joustavia toimitiloja merkittävässä arvokiinteistössä.
Vapautuu
Kysy
Rakennusvuosi
1931
Kerros
4
Energiatehokkuusluokka
G2007
Ota yhteyttä
LähiTapiola Kiinteistövarainhoito Oy
Heli Jalonen
Vuokrauspäällikkö
Näytä puhelinnumero
040 823 3490
Pyydä lisätietoa
