Vuokrataan toimistotilat, varastotilat - Jyväskylä
Sievisenmäentie 10 A, Jyskä, 40420 Jyväskylä #10857029
Laadukasta toimisto- ja varastotilaa loistavalta paikalta
Osoite
Sievisenmäentie 10 A, 40420 Jyväskylä
Tilatyyppi
Toimistotilaa
120 m2
Varastotilaa
100 m2
Yhteensä
220 m2
Kiinteistö
Laadukasta toimisto- ja varastotilaa loistavalta paikalta!
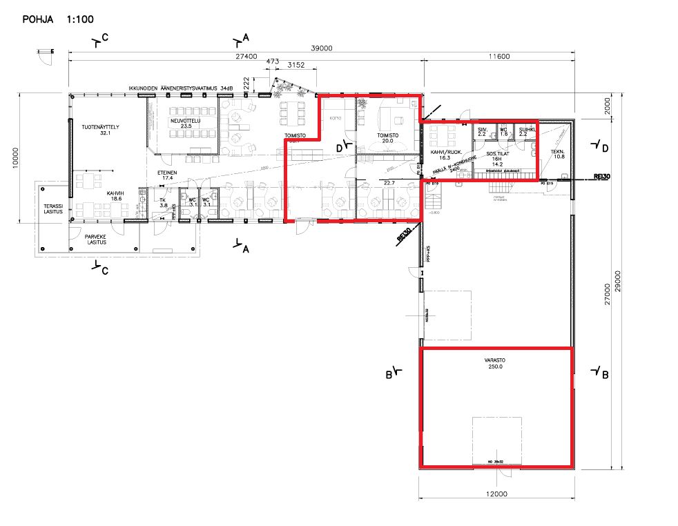
Vuokrataan noin 120 m² toimisto/taukotilat sekä 100 m² lämmintä varastotilaa todella hyvältä paikalta. Rakennus näkyy hyvin vilkkaasti liikennöidylle Vaajakosken moottoritielle, minkä kautta kulkee valtateiden 4, 9, 13 ja 23 liikenne. Ison liikennemäärän anisosta kohteessa on mahdollisuus saada suuri näkyvyys.
Toimisto-osa on muunneltavissa asiakkaan tarpeiden mukaan. Nyt tilat käsittää yhden toimistohuoneen ja isomman avotilan sekä neuvotteluhuoneen. Taukotilassa on kahvihuone/keittiö, pukuhuone, varasto ja wc/suihkuhuonetilat. Rakennus on rakennettu 2006 ja siinä on kaukolämpö.
Varastossa on öljynerotuskaivo ja päätyseinän keskellä nosto-ovi (leveys 3,70 cm ja korkeus 3,10). Hallin vapaa sisäkorkeus on 3,9 m. Rakennus on 5 000 m² tontilla ja asfaltoidun piha-alueen käytöstä sovitaan erikseen. Piha-alueelta on vuokrattavissa lämpötolpallisia autopaikkoja.
Vuokrataan noin 120 m² toimisto/taukotilat sekä 100 m² lämmintä varastotilaa todella hyvältä paikalta. Rakennus näkyy hyvin vilkkaasti liikennöidylle Vaajakosken moottoritielle, minkä kautta kulkee valtateiden 4, 9, 13 ja 23 liikenne. Ison liikennemäärän anisosta kohteessa on mahdollisuus saada suuri näkyvyys.
Toimisto-osa on muunneltavissa asiakkaan tarpeiden mukaan. Nyt tilat käsittää yhden toimistohuoneen ja isomman avotilan sekä neuvotteluhuoneen. Taukotilassa on kahvihuone/keittiö, pukuhuone, varasto ja wc/suihkuhuonetilat. Rakennus on rakennettu 2006 ja siinä on kaukolämpö.
Varastossa on öljynerotuskaivo ja päätyseinän keskellä nosto-ovi (leveys 3,70 cm ja korkeus 3,10). Hallin vapaa sisäkorkeus on 3,9 m. Rakennus on 5 000 m² tontilla ja asfaltoidun piha-alueen käytöstä sovitaan erikseen. Piha-alueelta on vuokrattavissa lämpötolpallisia autopaikkoja.
Vapautuu
Kysy
Kerros
1
Ota yhteyttä
Pyydä lisätietoa
