Vuokrataan toimistotilat - Helsinki
Salomonkatu 17, Kamppi, 00100 Helsinki #10856988
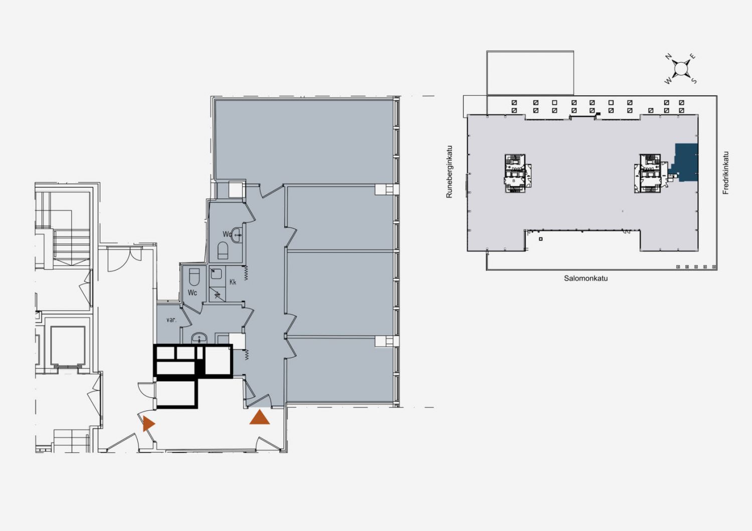
Vuokrataan kompakti pieni toimisto, jossa erillisiä huoneita.
Kiinteistössä valmistunut muutama vuosi sitten mittava perusparannushanke. Kiinteistön palveluihin kuuluu autohalli, pyöräparkki suihkuineen sekä ravintolamaailma.
Ohessa havainnollistavia kuvia Autotalon tiloista.
Ympäristön palvelut ovat loistavat. Lukuisia lounasravintoloita lähikortteleissa.
LISÄTIETOJA numerosta 020 7290 710. Lisää kohteita osoitteessa www.premises.fi.
Energialuokka E.Kerros: 3
Osoite
Salomonkatu 17, 00100 Helsinki
Tilatyyppi
Toimistotilaa
80,9 m2
Kulkuyhteydet
Loistavat kulkuyhteydet. Metro- ja linja-autoaseman välittömässä läheisyydessä. Junalle n. 5 min kävelymatka. Autopaikkoja voi vuokrata kiinteistön autohallista.
Ota yhteyttä
CRE PREMISES
Puh. Näytä puhelinnumero 020 7290 710
Vantaankoskentie 14
01670 VANTAA
Pyydä lisätietoa
