Vuokrataan toimistotilat, liiketilat, näyttelytilat, tuotantotilat, varastotilat, työtilat, hoivatilat, muut tilat - Turku
Vallihaudankatu 1, Port Of Kuopio, 20100 Turku #10856974
Uusi liiketila sataman läheisyydessä!
Kerroksia rakennuksessa on 5.
Hissi löytyy. Lämmitysmuodot ovat maalämpö, patteri.
- Erinomainen sijainti kehittyvällä sataman alueella
- Runsaasti uusia asuntoja ympärillä, potentiaalinen asiakaskunta lähettyvilläsi
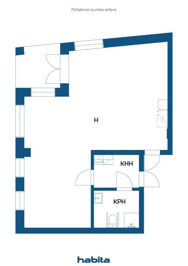
- Monipuolinen ja avara pohjaratkaisu, joka taipuu helposti erilaisiin käyttötarkoituksiin
- Esteetön sisäänkäynti, oma wc ja pieni keittiö
Harppuunakortteli on kehittyvä alue Turun sataman ja keskustan välimaastossa. Alue on täydellinen paikka yritykselle, joka haluaa olla siellä missä ihmiset liikkuvat. Alue houkuttelee jatkuvasti uusia asukkaita ja kävijöitä ja alueen hyvät liikenneyhteydet tekevät tilasta helposti saavutettavan.
Harppuunakortteli on kokonaisuus, jossa viihtyisyys, ekologisuus ja yhteisöllisyys ovat keskiössä. Korttelin keskellä sijaitsevasta korttelitalosta voi varata saunatiloja tai grillikatoksen, ja sisäpihan ulkokuntosali, hyötypuutarha ja juoksurata tarjoavat monipuolisia liikuntamahdollisuuksia. Lapsille on suunniteltu temppuratahenkinen leikkipaikka.
Lähikauppa Sale Kompassi palvelee korttelissa, ja Turun keskustan palvelut ovat helposti saavutettavissa kauniin Aurajokirannan kävely- ja pyöräilyreittejä pitkin. Lisäksi bussi nro 1 liikennöi tiheästi satamasta Kauppatorille, jonne matkaa on noin kolme kilometriä.
Habita Finland Oy
Linnankatu 37 , 20100 Turku
Näytä puhelinnumero
010 585 5340
Mika Järviö
Näytä puhelinnumero
+358 50 4200344
##Kiinteistönvälitys Turku - asuntokauppaa vuodesta 1989
Turun parasta kiinteistönvälitystä vuosien kokemuksella. Turun Habita tarjoaa erittäin luotettavaa kiinteistönvälitystä sekä ammattitaitoisia kiinteistönvälittäjiä. Olemme Suomen suurin yksityinen kiinteistönvälitysliike, jossa työskentelevät kiinteistönvälityksen rautaiset konkarit. Joukostamme löydät varmasti mieleisesi kiinteistönvälittäjän.
Tarjoamme Turussa huoneistojen, kiinteistöjen ja toimitilojen myynti- sekä ostopalvelua. Kiinteistönvälitystä ja kiinteistön vuokrausta olemme tehneet jo vuodesta 1989 asti. Habita on valtakunnallinen toimija, joka myy ja vuokraa myös loma-asuntoja sekä kakkoskoteja monesta kiinnostavasta ulkomaankohteesta.
## Kokeneet kiinteistönvälittäjät Turussa
Meillä on myyntialan osaamista aina pienemmistä osakehuoneistoista arvokkaampiin kiinteistökauppoihin. Kokeneet ja koulutetut kiinteistönvälittäjät auttavat sinua asuntokaupan kaikissa vaiheissa. Habitan kiinteistönvälittäjät Turussa toimivat yhteistyössä mainostaen myytäviä asuntoja potentiaalisille ostajille.
Saat meiltä ilmaisen hinta-arvion myytävästä kiinteistöstä sekä ammattitaitoisen kiinteistönvälittäjän avuksi kiinteistönvälitykseen. Habita markkinoi myytäviä asuntoja myös kattavan asiakasrekisterinsä kautta, jossa tuhannet etsivät uutta asuntoa. Takaamme asunnon tehokkaan markkinoinnin sekä aktiivisen kiinteistön esittelyn. Kiinteistönvälittäjät hoitavat myös kaikki tarvittavat dokumentit asuntokauppaa varten.
## Turun kiinteistönvälitys ja vuokrauspalvelu
Kiinteistönvälittäjämme palvelevat asunnon myyjien lisäksi myös asunnon ostajia. Habitan edustaja esittelee sinulle myynnissä olevia kohteita, jotka vastaavat parhaiten tarpeisiisi. Järjestämme tarvittaessa yksityiset asuntonäytöt. Tunnemme Turun asuinalueet ja huomioimme toiveesi etsiessämme sinulle uutta kotia. Autamme kaikissa asunnon vaihtoon ja uuden kodin ostoon liittyvissä asioissa.
Palvelemme myös vuokranantajia ja etsimme luotettavat vuokralaiset asunnollesi. Habita vuokrauspalveluun sisältyy muun muassa vuokralaisen luotto- ja työpaikka-arviointi sekä vuokrasopimuksen valmistelu. Saat meiltä apua myös ongelmatilanteissa.
Esittelemme Turun vuokra-asuntoja myös sivuillamme ja voit tuoda täytetyn vuokra-asuntohakemuksen mukanasi asuntoesittelyyn.
Turku on monipuolinen kaupunki ja kiinteistönvälitys alueella usein vilkasta. Kiinteistönvälittäjämme kertovat lisää Turun seudun asuntomarkkinatilanteesta sekä eri asuinalueiden kehityksestä. Vastaamme mielellämme niin asunnon myyjien, ostajien kuin asuntosijoittajien kysymyksiin kiinteistönvälityksestä.
Tarjoamme laadukkaita ja kattavia palveluita kiinteistönvälitykseen. Voit luottaa osaamiseemme sekä taitoomme myydä asuntosi parhaaseen hintaan. Ota yhteyttä Turun kiinteistönvälittäjiimme, kun mietit asunnon myyntiä, vuokrausta tai uuden asunnon ostoa.
