Vuokrataan liiketilat - Helsinki
Runeberginkatu 44, Töölö, 00260 Helsinki #10856969
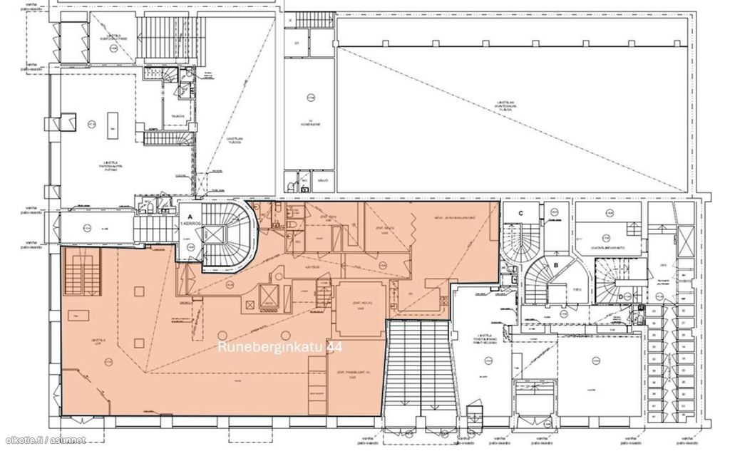
Katutason liiketilaa näkyvällä paikalla Töölöntorilla.
Tämä 338 m² liiketila sijaitsee kiinteistön kulmassa, ja se tarjoaa isot näyteikkunat ja hyvän näkyvyyden kahteen suuntaan. Tilaan on oma sisäänkäynti suoraan kadulta. Liiketilassa on avaraa myymälätilaa sekä tilava takatila tauko- ja wc-tiloineen. Vapautuminen sopimuksen mukaan.
Runeberginkatu 44 sijaitsee Töölössä, hyvien julkisten liikenneyhteyksien varrella. Lähellä on runsaasti erilaisia erikoisliikkeitä, palveluntarjoajia ja ravintoloita, jotka tuovat alueelle asiakasvirtaa.
Kysy lisää numerosta 044 723 4700 tai info@bref.fi. Palvelumme on tilanhakijoille ilmainen.
Bureau Real Estate Finland Oy
Lars Sonckin kaari 16, 02600 Espoo
Näytä puhelinnumero
0447234700
Bureau Real Estate Finland Oy
https://www.bref.fi