Vuokrataan toimistotilat - Espoo
Metsänpojankuja 1, Pohjois-Tapiola, 02130 Espoo #10856956
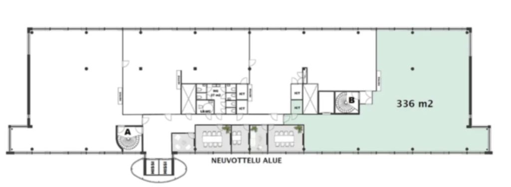
Toimistotilaa Espoon Pohjois-Tapiolassa, MaarinPortissa.
MaarinPortti on vuonna 2025 remontoitu toimistokohde. Uudistuksen myötä kiinteistöstä on vuokrattavana pääkonttoritasoista toimistotilaa. Tiloja on mahdollista vuokrata kerroksittain tai kerrokset on mahdollista jakaa kolmelle käyttäjälle, alkaen 200 m² kokoisiin osiin. Tilat ovat vielä raakapinnoilla, joten tilankäyttöratkaisuihin ja materiaalivalintoihin on mahdollista vaikuttaa. Käytössä on myös vuokranantajan tarjoama sisustussuunnittelija.
Metsänpojankuja 1 eli MaarinPortti sijaitsee Pohjois-Tapiolassa, Kehä I:n ja Tapiolan liittymän välittömässä läheisyydessä. Kiinteistö on modernisoitu täysin ja tilojen suunnittelussa on kiinnitetty erityistä huomiota mm. sisäilman laatuun ja ilmanvaihtoon, valaistukseen sekä akustiikkaan. Kiinteistöllä on LEED Gold -tason ympäristösertifikaatti. Alueelle on hyvät julkisen liikenteen yhteydet busseilla ja metrolla. Kiinteistöllä on oma pysäköintihalli. Kiinteistössä on aulapalvelu, lounasravintola ja kahvila, auditorio sekä vuokrattavia neuvottelutiloja.
Kysy lisää numerosta 044 723 4700 tai info@bref.fi. Palvelumme on tilanhakijoille ilmainen.
Bureau Real Estate Finland Oy
Lars Sonckin kaari 16, 02600 Espoo
Näytä puhelinnumero
0447234700
Bureau Real Estate Finland Oy
https://www.bref.fi