Vuokrataan varastotilat - Vantaa
KOY Kivistön Talliosake 2 tila 3 – parvi, wc, Mestarintie 1, Kivistö, 01730 Vantaa #10856946
Kivistön monikäyttöinen varasto, autotalli, harraste-, toimitila 3. Tilassa jo valmiina parvi ja wc.
Osoite
Mestarintie 1, 01730 Vantaa
Tilatyyppi
Varastotilaa
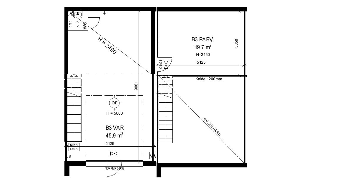
66 m2
Vuokra
895 € / kk
Kiinteistö
KOY Kivistön Talliosake 2
Sijainti
Kivistön Talliosake 2 sijainti näkyvällä paikalla palvelee niin kuluttaja- kuin yritysasiakkaita. Kohde on hyvien kulkuyhteyksien varrella: nopeasti ja vaivattomasti lentokentälle sekä E12 ja Kehä III.
Muuta
Vuokrataan vain yritysasiakkaille – vuokraan lisätään ALV 25,5%.
Moottoroitu nosto-ovi erillisellä käyntiovella. Autolla sisään ajettava tila. Tilamitat: 9,06 (Pituus) 5,12 (Leveys) 5,00 (Korkeus). Ovimitat: 3,40 (Leveys) 3,90 (Korkeus).
Käyttötarkoitusesimerkkejä: - toimitila - varastotila - yrityksen työtarvikevarasto / kalustovarasto - kimppatalli - harrastetila - bändikämppä - autotalli - moottoripyörätalli - mönkijätalli. Tila ei sovellu autokorjaamoksi eikä autopesulaksi.
Tila on sähkölämmitteinen. Vuokralainen tekee tilaan oman sähkösopimuksen. Vesi- ja sähkömaksu kulutuksen mukaan. Vakuus kahden kuukauden vuokraa vastaava määrä. Haetaan pitkäaikaista vuokralaista. Luottotiedot tarkistetaan.
Talliosake tuottaa joustavasti muunneltavia hallitiloja ympäri Suomen, joita yritykset ja yksityishenkilöt käyttävät tukikohtinaan erilaisille toiminnoille: yritys- ja liiketoimintaan, varastointiin sekä harrastuksiin.
Moottoroitu nosto-ovi erillisellä käyntiovella. Autolla sisään ajettava tila. Tilamitat: 9,06 (Pituus) 5,12 (Leveys) 5,00 (Korkeus). Ovimitat: 3,40 (Leveys) 3,90 (Korkeus).
Käyttötarkoitusesimerkkejä: - toimitila - varastotila - yrityksen työtarvikevarasto / kalustovarasto - kimppatalli - harrastetila - bändikämppä - autotalli - moottoripyörätalli - mönkijätalli. Tila ei sovellu autokorjaamoksi eikä autopesulaksi.
Tila on sähkölämmitteinen. Vuokralainen tekee tilaan oman sähkösopimuksen. Vesi- ja sähkömaksu kulutuksen mukaan. Vakuus kahden kuukauden vuokraa vastaava määrä. Haetaan pitkäaikaista vuokralaista. Luottotiedot tarkistetaan.
Talliosake tuottaa joustavasti muunneltavia hallitiloja ympäri Suomen, joita yritykset ja yksityishenkilöt käyttävät tukikohtinaan erilaisille toiminnoille: yritys- ja liiketoimintaan, varastointiin sekä harrastuksiin.
Vapautuu
Heti vapaa
Katutasossa
Ota yhteyttä
Talliosake Oy
Jani Sanevuori
Aluemyyntipäällikkö,
Etelä-Suomi, Vuokrauspalvelu, LVV
Näytä puhelinnumero
050 361 4814
Pyydä lisätietoa
