Vuokrataan toimistotilat - Helsinki
Fredrikinkatu 55, Kamppi, 00100 Helsinki #10856937
Tyylikäs 120 m² toimistotila saneeratussa kiinteistössä
Osoite
Fredrikinkatu 55, 00100 Helsinki
Tilatyyppi
Toimistotilaa
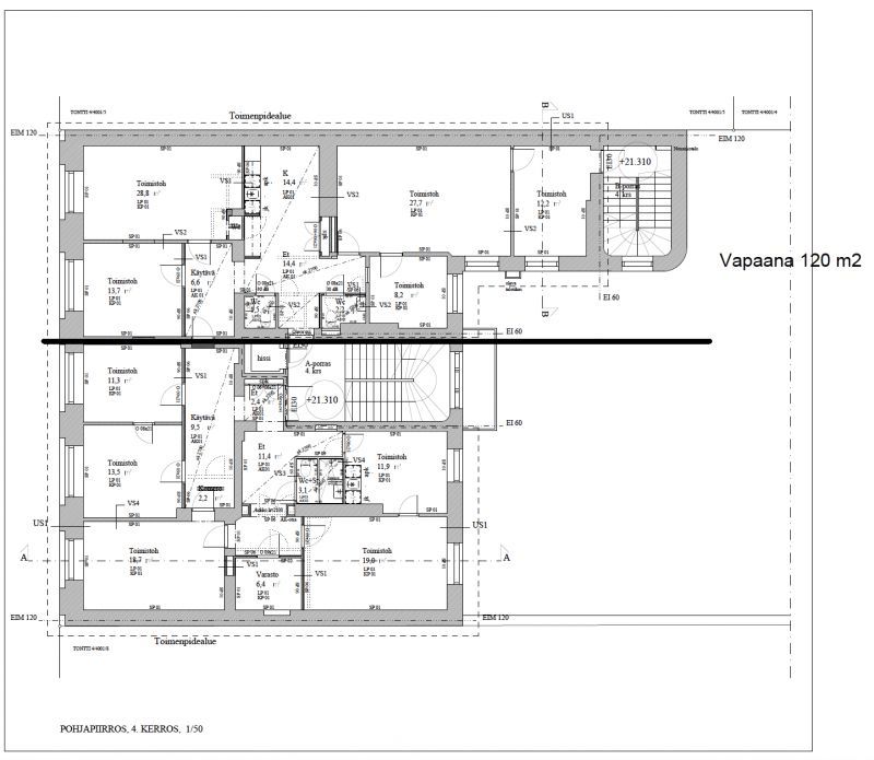
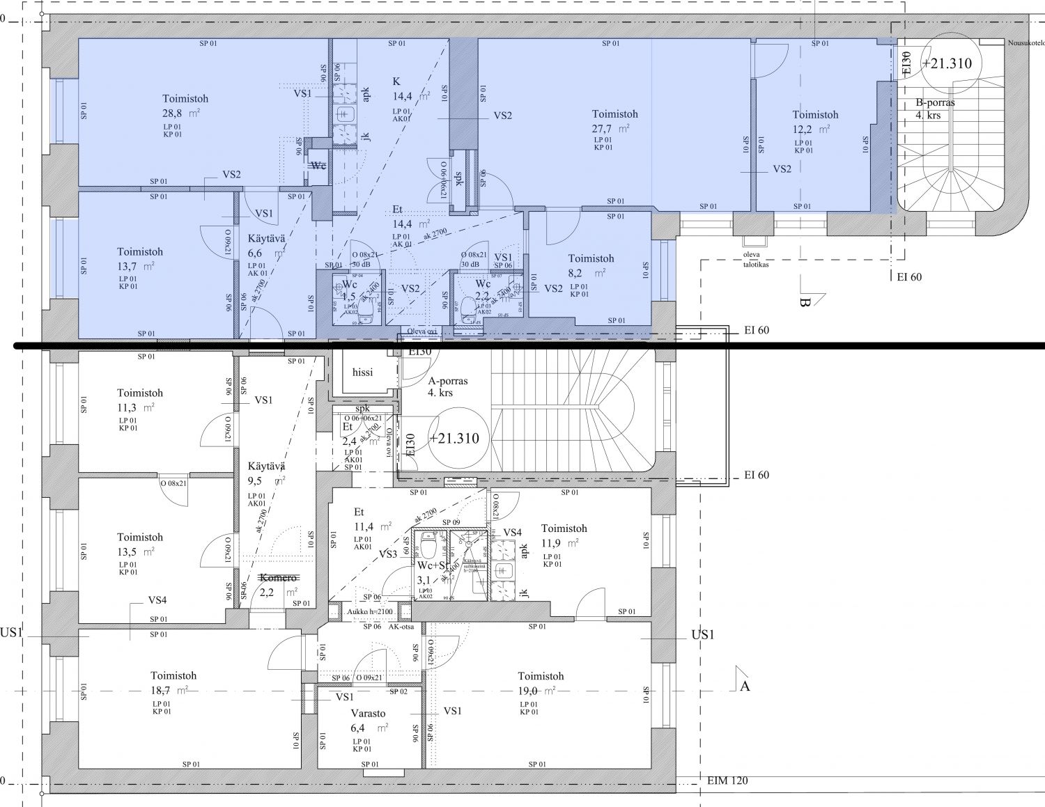
120 m2
Pohjapiirros
Vuokra
3000 € / kk + alv
Kiinteistö
Tilassa viisi erikokoista toimistohuonetta, keittiö ja wc.
- Saneerattua tilaa (kaikki pinnat + tekniikka)
- Kuituyhteys
- Omalla sisäpihalla rajoitetusti autopaikkoja, saatavilla 1 kpl autopaikka
- Edustava rappukäytävä, jossa 3 hengen hissi
Lankku- / rustiikkiparkettilattiat, uudet laatoitetut wc-tilat, tyylikkäät keittiöt jne.
- Saneerattua tilaa (kaikki pinnat + tekniikka)
- Kuituyhteys
- Omalla sisäpihalla rajoitetusti autopaikkoja, saatavilla 1 kpl autopaikka
- Edustava rappukäytävä, jossa 3 hengen hissi
Lankku- / rustiikkiparkettilattiat, uudet laatoitetut wc-tilat, tyylikkäät keittiöt jne.
Vapautuu
Heti
Rakennusvuosi
1914
Saneerausvuosi
2019
Kerros
4 / 6
Energiatehokkuusluokka
Ei lain edellyttämää energiatodistusta
Näkyvällä paikalla
Hissi
Ota yhteyttä
ScanReal Oy LKV
Opus Business Park
Hitsaajankatu 24
00810 Helsinki
info@scanreal.fi
Puh:
Näytä puhelinnumero
020 730 8830
Sopivat toimitilat yhdellä otolla!
Kartoitamme toimitilatarpeesi ja etsimme yrityksellesi parhaiten sopivat vapaat toimitilat. Koska vuokranantajat maksavat palvelumme, on tämä yrityksellesi veloituksetonta.
OTA YHTEYTTÄ - SOVI NÄYTTÖ!
Kaikki kohteemme eivät ole netissä, kerro tilatarpeesi niin kartoitamme vaihtoehdot.
Palvelumme on tilanhakijalle ilmainen
Pyydä lisätietoa
