Vuokrataan toimistotilat - Helsinki
Paasivuorenkatu 3, Siltasaari, 00530 Helsinki #10856918
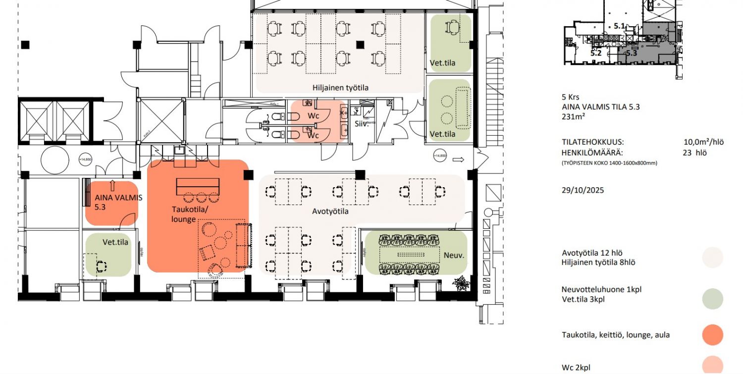
Vuokrataan Aina Valmis-tilaa Siltasaaressa.Tilat remontoidaan Aina Valmis -konseptin mukaisesti laadukkailla ja vastuullisilla materiaaleilla sekä toimivalla tilaratkaisulla vastaamaan nykytyöelämän vaatimuksia. Jäähdytetty ilmanvaihto, nopea tietoliikenne. Erinomaiset liikenneyhteydet Hakaniementorilta. Ota yhteyttä ja sovi esittely, vuokrauspalvelumme on tilanhakijoille maksuton.
Osoite
Paasivuorenkatu 3, 00530 Helsinki
Tilatyyppi
Toimistotilaa
231 m2
Pohjapiirros
Kiinteistö
Talo on peruskorjattu vuonna 2011 sen alkuperäistä tunnelmaa kunnioittaen. Esimerkiksi rakennuksen pankkisalin ja pääporrashuoneen luonnonkivilaatoitus ja jyhkeä tyyli on säilytetty tähän päivään. Kiinteistössä palvelee edustava tilaussauna, ja sisäpihalla on viihtyisä talvipuutarha. Ikkunanäkymät tiloista avautuvat Paasivuorenpuistikkoon.
Sijainti
Siltasaari
Pysäköinti
Autohalli
Kulkuyhteydet
Metro, bussit ja ratikat.
Vapautuu
Heti
Kerros
5 / 7
Energiatehokkuusluokka
Ei lain edellyttämää energiatodistusta
Näkyvällä paikalla
Hissi
Ota yhteyttä
Senaatin Notariaatti Oy LKV
Lämmittäjänkatu 4 A
FIN-00880 Helsinki
Tel:
Näytä puhelinnumero
+358 9 7745 100
Pyydä lisätietoa
