Vuokrataan toimistotilat - Tampere
Mäntyhaantie 1-3, 33800 Tampere #10856887
Tilavaa toimistotilaa Viinikasta! Erinomaisessa kunnossa oleva toimistotila tarjolla Mäntyhaantiellä. Hyvät liikenneyhteydet sekä julkisella että omalla autolla. Katettu iso lastaussilta ja sieltä hyvä kulkuyhteys toimitilaan.
Mahdollisuus vuokrata myös varastotilaa n. 80 m2 heti lastaussillan vierestä
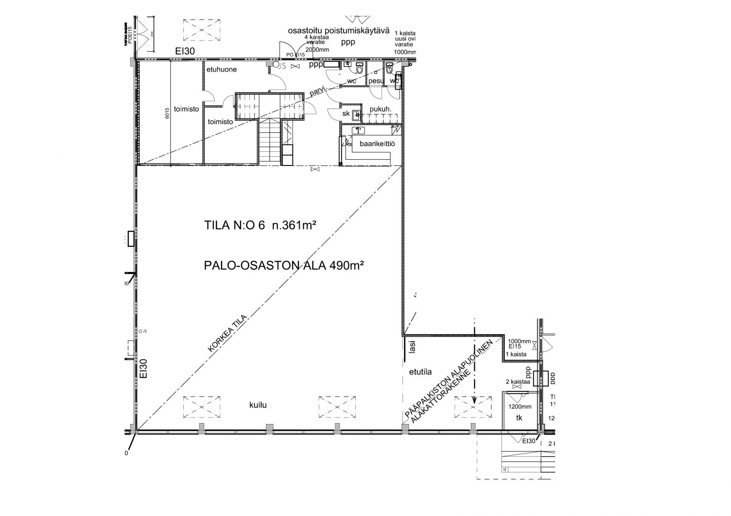
Avoin tila korkeaa tilaa ja toimistohuoneet lasiseinillä parvella ja sen alla.
Hyvin varusteltu avokeittiö
Osoite
Mäntyhaantie 1-3, 33800 Tampere
Tilatyyppi
Toimistotilaa
458 m2
Vuokra
6183
Vuokraan sisältyy vesi, lämpö, jäähdytys
Kiinteistö
Hyvät remontoidut tilat ja iso katettu lastaussilta. Mahdollisuus vuokrata myös varastotilaa n. 80 m² lastaussillan vierestä.
Sijainti
Nekalan/Viinikan teollisuusalue
Pysäköinti
Mahdollisuus vuokrata pysäköintipaikkoja 25€/kk
Kulkuyhteydet
Hyvät niin julkisilla kuin omalla autolla.
Vapautuu
Heti
Kerros
1 / 1
Huoneiden lukumäärä
6
Katutasossa
Näkyvällä paikalla
Lastauslaituri
Ota yhteyttä
Huoneistokeskus Oy
Huoneistokeskus Oy/Toimitilat
Hämeenkatu 31
33200 Tampere
Mikko Syrjänen. LKV
Näytä puhelinnumero
0405061305
Pyydä lisätietoa
