Vuokrataan tuotantotilat, varastotilat - Helsinki
Rahtarinkatu 5, Vuosaari, 00980 Helsinki #10856839
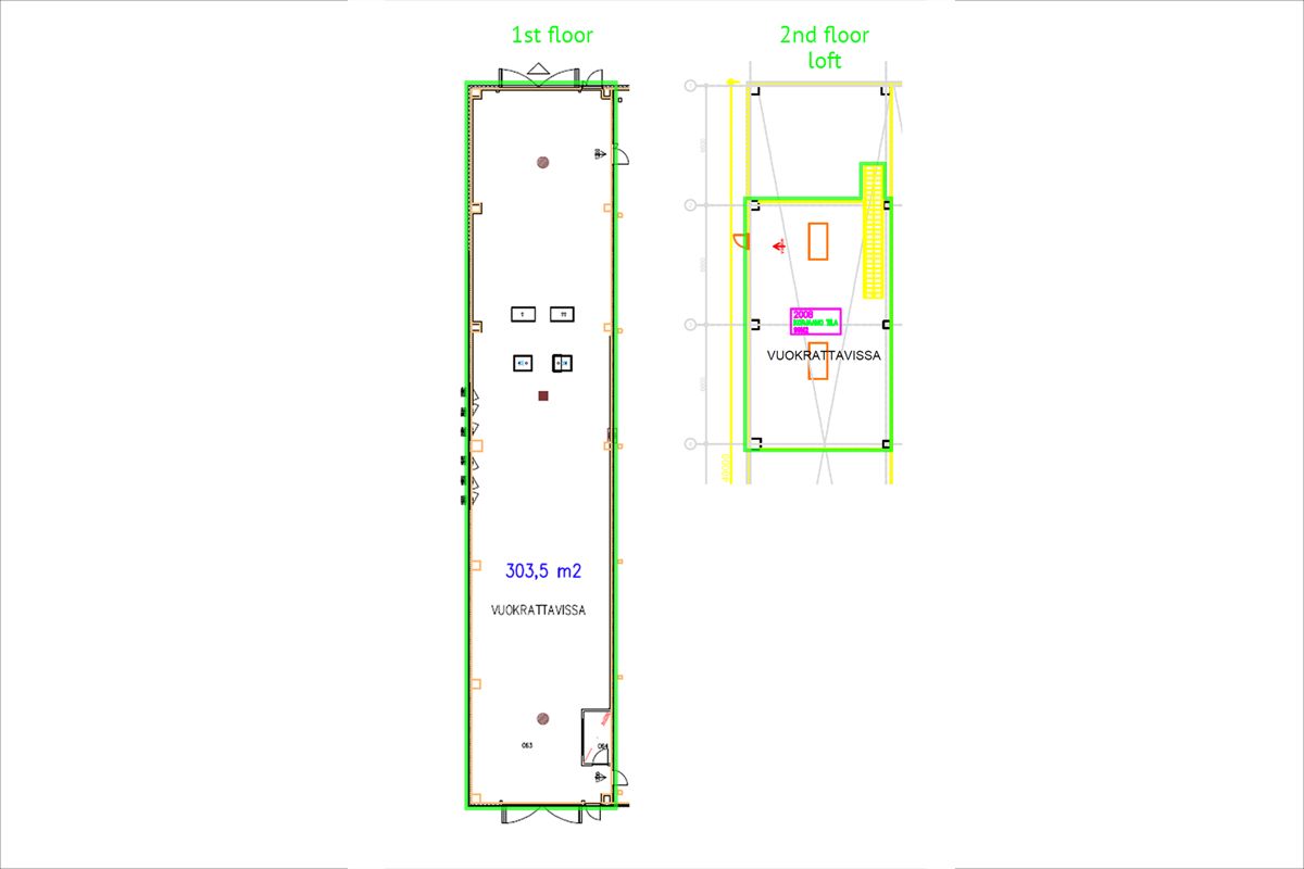
Nykyaikainen raskaankaluston huoltohalli. Vapaana n. 308 m2:n lohko, jossa on huoltokuilu ja varaus jarrudynamometrille sekä parvi n. 99 m2, yht. n. 407 m2.
Erikoisrakenteita. Vapaa korkeus noin 6 metriä, lattian kantavuus 20 kN/m2, läpiajopituus n. 40 m. Päätytilassa n. 99 m2 parvi (ei toimistoparvi). Soveltuu liiketoimintaan, joka ei vaadi sisätilojen lisäksi pihatiloja.
Moderni korjaamo- ja toimitilarakennus Vuosaaren satamakeskuksessa. Kiinteistössä toimii kahvila-ravintola. Kiinteistössä edustavat saunatilat, joita on mahdollisuus vuokrata tarpeen mukaan.
Lisätiedot ja kohde-esittelyt 020 7290 710, lisää kohteita premises.fi
Kohteella ei ole lain edellyttämää energiatodistusta tai energialuokka ei tiedossa.Kerros: 1
CRE PREMISES
Puh. Näytä puhelinnumero 020 7290 710
Vantaankoskentie 14
01670 VANTAA
