Vuokrataan toimistotilat, autotalli/-hallitilat, muut tilat - Jyväskylä

Tourukatu 24, 40100 Jyväskylä #10856832

niikki marmoripintainen rakennus Tourukadulla! Soveltuu niin yrtiksen tai yhdistyksen toimi- ja edustustilaksi, kuin asuinkäyttöön!

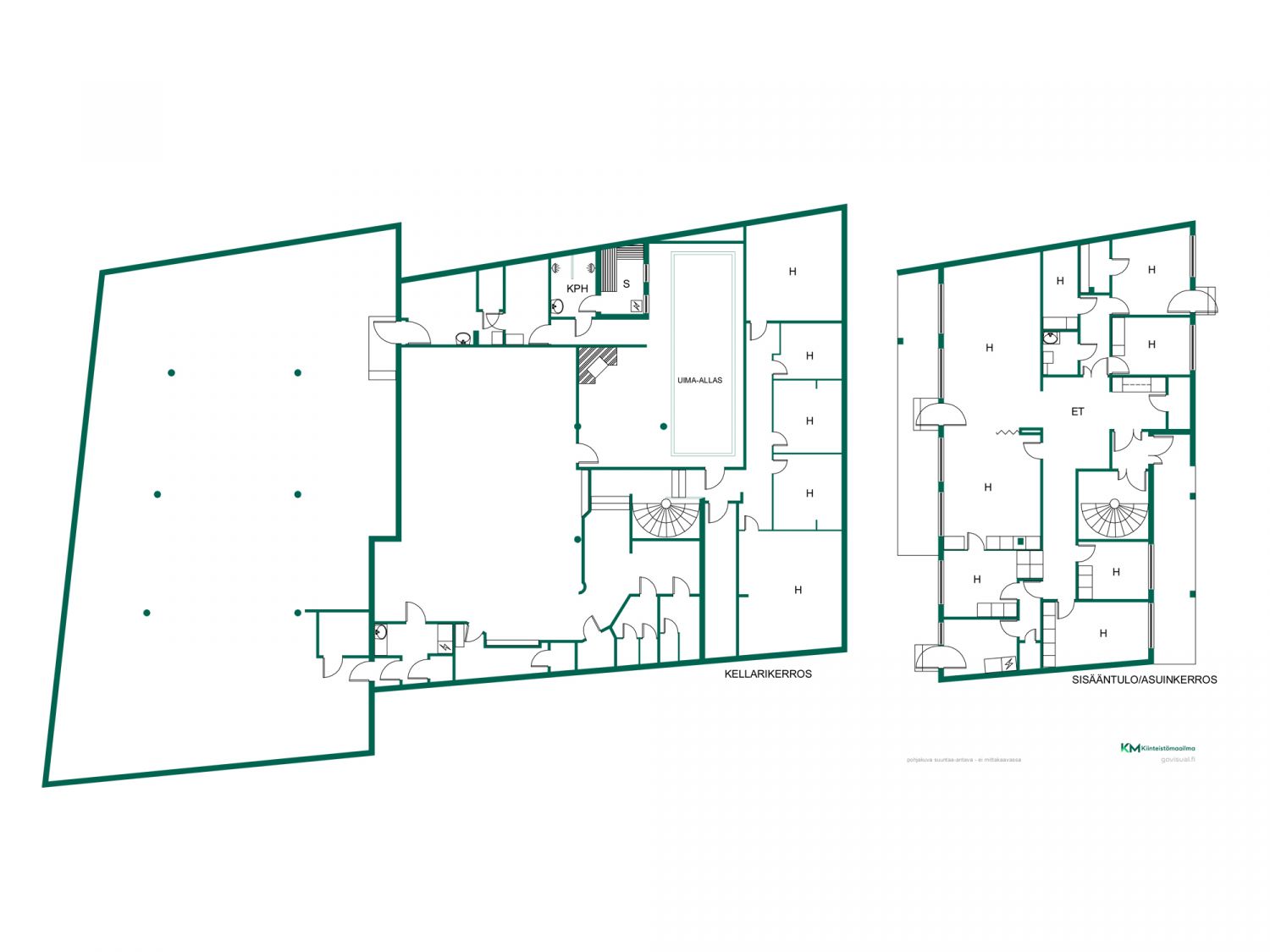
Rakennuksesta vuokrataan sisääntulo-, sekä kellarikerros. Ylimmässä kerroksessa Muurametalojen toimisto. Laadukkaasti remontoitu sisääntulokerros pitää sisällään ison avokeittiön ja olohuoneen, 5 huonetta, joista 4 soveltuu hyvin myös makuuhuoneiksi. Kylpyhuoneen, jossa wc ja kodinhoitotila, sekä 2 erillistä wc:tä. Vuokralaisen käytössä myös piha. Kellarikerroksesta löytyy sisääntulo käytävä, iso avonainen tila, joka on toiminut yhtiön edustustilana, saunatilat, joissa myös takkahuone ja uima-allas. Pieni keittiö, 3 wc:tä ja 4-5 varastohuonetta. Kirsikkana kakussa kellarikerroksessa 10 auton suuri autohalli. Täällä et kärsi keskustan pysäköintitilan puutteesta.

Vuokrataan ensisijaisesti arvonlisäverovelvolliseen käyttöön, kysy erikseen yksityishenkilönä. Mahdollisuus neuvotella vain toisen kerroksen vuokraamisesta. Vuokran lisäksi sovitaan vesi- ja sähkömaksuista riippuen siitä, mihin käyttöön tilat tulevat. Lämmitys sisältyy vuokraan. Vuokraan lisätään alv. Pohjakuva suuntaa antava, joitain muutoksia tehty. Tehty talotekniikkasaneerausta 2012.

Tule tutustumaan tähän uniikkiin ja edustavaan tilaan aivan keskustan kupeessa! Topi Kovanen 0400166246, topi.kovanen@kiinteistomaailma.fi

Osoite
Tourukatu 24, 40100 Jyväskylä
Tilatyyppi
Toimistotilaa
278 m2
Autotalli/-hallitilaa
400 m2
Muuta tilaa
260 m2
Yhteensä
938 m2
Tilajako
Asuin-/toimistotilaa sisääntulokerros 278m2, 400m2 autohalli, 140m2 muut tilat, 120m2 saunaosasto
Vuokra
2900
Pysäköinti
Oma halli 10-12 autolle
Lisätietoa saneerauksista
Talotekninen saneeraus
Vapautuu
Heti
Rakennusvuosi
1978
Saneerausvuosi
2012
Ota yhteyttä

Vapaaherrantie 2
40100 JYVÄSKYLÄ

Pyydä lisätietoa

Kohteesta Tourukatu 24, Jyväskylä

 

B2B palvelut

LASTAUSRATKAISUT

Mainos
Lastauksien ratkaisut tehokkaammin ja turvallisemmin

HALLIT