Vuokrataan varastotilat - Tampere
Ilmailunkatu 3, Härmälä, 33900 Tampere #10856771
Vuokrataan kokonainen logistiikkakiinteistö erinomaisella sijainnilla Sarankulman teollisuus- ja liikealueella, Tampereen kehätien sekä Helsinki-Tampere moottoritien välittömässä läheisyydessä. Tilat soveltuvat sekä varastointiin että tuotannolliseen toimintaan.
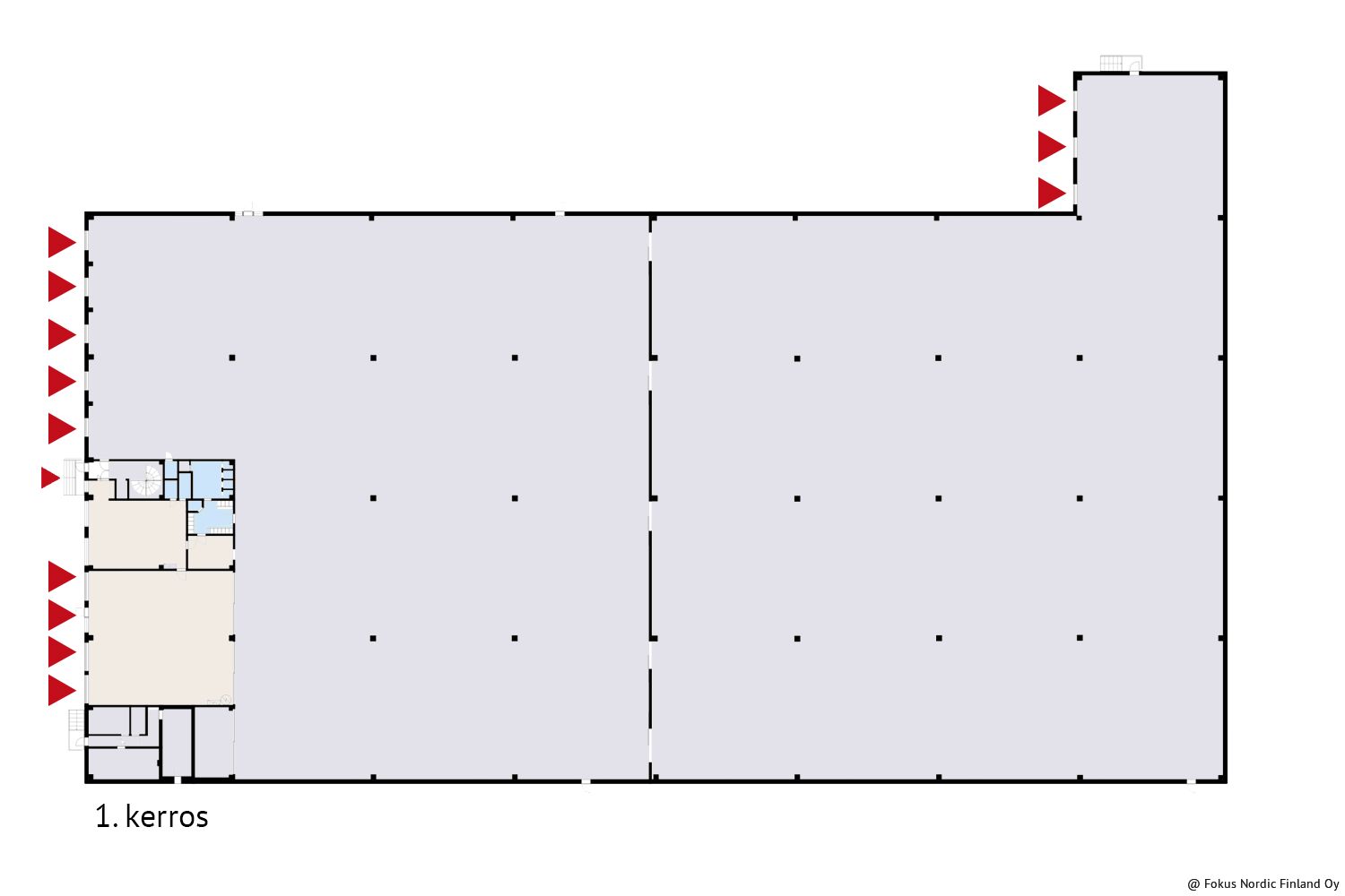
Varastotilaa on 1. kerroksessa noin 6600 m², joka jaettavissa 3570m², 2200m² ja 880m². Vapaa korkeus on n. 7 m. Käytössä on kahdeksan lastaustaskua sekä neljä lämpimään lastaustilaan johtavaa nosto-ovea. Toimisto- ja sosiaalitilat kahdessa kerroksessa 135+217 m². Lisäksi 2. kerroksessa parvivarasto 213 m². Pohjakuvat ovat suuntaa antavia.
Käytettävissä on myös asfaltoitu ja aidattu piha-alue, jota on tarvittaessa mahdollista laajentaa. Kysy lisätietoja ja sovi henkilökohtainen tutustumiskäyntisi kohteeseen!
Jaettavissa
Fokus Nordic | PG Warehouse Finland
Mikonkatu 7, 00100 Helsinki
Näytä puhelinnumero
09 42732519
Ville Salminen
Näytä puhelinnumero
041 547 7883
Fokus Nordic Finland Oy vuokraa toimisto-, liike-, varasto-, tuotanto- ja logistiikkatiloja Suomesta. Tarjoamme monipuolisia ja asiakkaiden toiveiden mukaisesti räätätöityjä tilaratkaisuja erikokoisille yrityksille.
https://fokusnordictilat.fi/