Vuokrataan - Helsinki
Salomonkatu 17, Kamppi, 00100 Helsinki #10856720
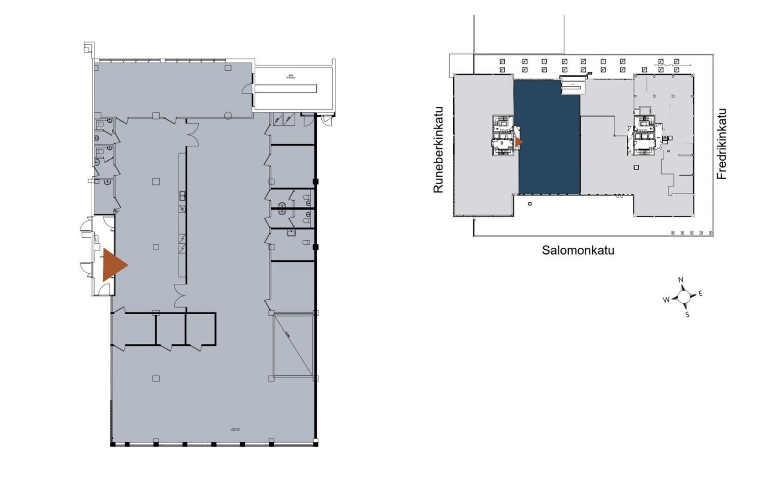
Vuokrataan 523 m2 edustava monitilatoimisto Autotalon B-tornissa, Kampissa!
Tarjolla upea ja muuntojoustava 523 m2 toimistotila arvostetussa Autotalon B-tornissa. Kiinteistö tarjoaa hyväkuntoista ja nykyaikaista toimitilaa historiallisessa, mutta moderniin käyttöön päivitetyssä kokonaisuudessa.
Perinteikäs Autotalo on valmistunut vuonna 1958 ja on osa ikonista Kampin Autotalokorttelia. Kiinteistöön on toteutettu laaja ja mittava perusparannushanke vuonna 2015, jonka yhteydessä tiloja on avarrettu ja päivitetty vastaamaan nykypäivän käyttäjien vaatimuksia. Rakennuksessa on 12 kerrosta sekä kolme maanalaista kerrosta. Myös Autotalon näyttävä aulatila on uudistettu korkeatasoiseksi ja edustavaksi.
Autotalokortteli sijaitsee erinomaisella paikalla Kampin kauppakeskuksen välittömässä läheisyydessä. Kohteeseen on poikkeuksellisen hyvät julkiset liikenneyhteydet: metro, raitiovaunut ja useat bussilinjat ovat aivan vieressä. Yksityisautoilijoille on tarjolla vaivaton pysäköinti korttelin omassa maanalaisessa autohallissa.
Tila soveltuu erinomaisesti yritykselle, joka arvostaa keskeistä sijaintia, edustavuutta ja toimivaa nykyaikaista työympäristöä.
Kysy lisää: jouko.raitanen@rhg.fi/0504695444
RHG Real Estate
Hämeenkatu 2 B20, 20500 Turku
Jouko Raitanen
Näytä puhelinnumero
050 469 5444
