Videoesittely
Vuokrataan liiketilat - Joensuu
Raatekankaantie 1, 80100 Joensuu #10856704
Vuokrataan näkyvä monipuolinen kauppapaikka Raatekankaan liikealueelta. Pihatilaa on myös mahdollista laajentaa.
Osoite
Raatekankaantie 1, 80100 Joensuu
Tilatyyppi
Liiketilaa
1667 m2
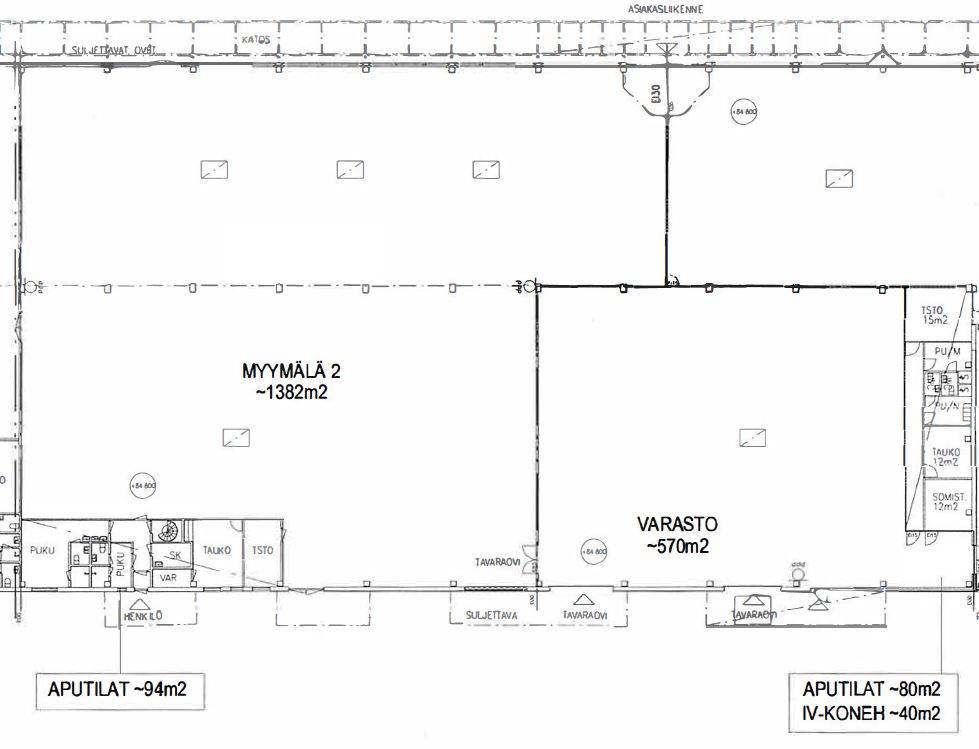
Pohjapiirros
Kiinteistö
Liiketila kokonaisuus on 1667 m2 ja se muodostuu noin 1382 m² liiketilasta sekä noin 580 m² varastotilasta, jotka jaetaan kahden käyttäjän kesken. Varastotilan osuus sovitaan tarkemmin käyttäjien kesken tarpeen mukaan.
Liiketila on pääosin avotilaa ja soveltuu hyvin esimerkiksi myymälä-, showroom- tai palveluliiketoimintaan. Varasto-, ja liiketilaan on nosto-ovet, ja tavaraliikenne on mahdollista hoitaa sujuvasti sekä pihan että liiketilan kautta. Kokonaisuus tukee tehokasta yhdistelmää myymälä- ja varastokäytölle.
Kiinteistön käytössä on laaja piha-alue, asiakaspysäköintipaikkoja sekä lastausta helpottavat pihatilat. Ratkaisu mahdollistaa kahden käyttäjän toiminnan samassa kokonaisuudessa selkeästi ja käytännöllisesti.
Kiinteistö on ympäriajettava.
Liiketila on pääosin avotilaa ja soveltuu hyvin esimerkiksi myymälä-, showroom- tai palveluliiketoimintaan. Varasto-, ja liiketilaan on nosto-ovet, ja tavaraliikenne on mahdollista hoitaa sujuvasti sekä pihan että liiketilan kautta. Kokonaisuus tukee tehokasta yhdistelmää myymälä- ja varastokäytölle.
Kiinteistön käytössä on laaja piha-alue, asiakaspysäköintipaikkoja sekä lastausta helpottavat pihatilat. Ratkaisu mahdollistaa kahden käyttäjän toiminnan samassa kokonaisuudessa selkeästi ja käytännöllisesti.
Kiinteistö on ympäriajettava.
Sijainti
Kiinteistöllä on erinomainen ja näkyvä sijainti Raatekankaantien ja Lukkotien kulmassa.
Pysäköinti
Kiinteistöllä on oma iso piha-alue jossa on pysäköintipaikkoja 200 kpl etupihalla sekä iso aidattu takapiha.
Palvelut
Liikealueella palvelevat useat kaupanalan toimijat, autokeskukset sekä Pohjois-Karjalan suurin Retail Park -tyylinen kauppakeskus.
Muuta
Mahdollisuus laajentaa piha-aluetta viereiselle tontille, mikä tuo lisäjoustoa toiminnan kasvaessa.
Vapautuu
sopimuksen mukaan
Rakennusvuosi
2006
Energiatehokkuusluokka
Ei lain edellyttämää energiatodistusta
Katutasossa
Näkyvällä paikalla
Ota yhteyttä
Comreal Oy LKV
Joonas Nilsson
Näytä puhelinnumero
044 328 3425
Läkkisepänkuja 6, 00620 Helsinki
Comreal on valtakunnallinen, asiantunteva ja aktiivinen kiinteistöalan kumppani, joka palvelee sekä kiinteistönomistajia että toimitilojen käyttäjiä. Toimintamme ydin on yksinkertainen: tarjota erinomaista palvelua kaikille.
Pyydä lisätietoa
