Vuokrataan toimistotilat - Helsinki
Sahaajankatu 24, Herttoniemi, 00880 Helsinki #10856694
Siistiä toimistoatilaa Herttoniemessä Ityäväylän läheisyydessä. Talossa on lounasravintola. Ota yhteyttä ja sovi esittely, vuokrauspalvelumme on tilanhakijoille maksuton.
Osoite
Sahaajankatu 24, 00880 Helsinki
Tilatyyppi
Toimistotilaa
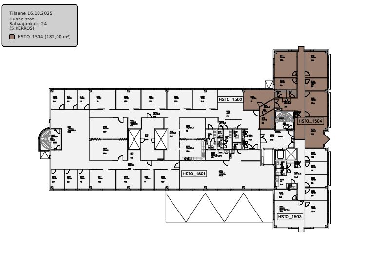
182 m2
Pohjapiirros
Sijainti
Herttoniemi
Pysäköinti
Pihalla
Palvelut
Itäkeskus, Gigahertsi.
Kulkuyhteydet
Metro ja bussit.
Vapautuu
Heti
Kerros
5 / 5
Energiatehokkuusluokka
Ei lain edellyttämää energiatodistusta
Hissi
Ota yhteyttä
Senaatin Notariaatti Oy LKV
Lämmittäjänkatu 4 A
FIN-00880 Helsinki
Tel:
Näytä puhelinnumero
+358 9 7745 100
Pyydä lisätietoa
