Vuokrataan toimistotilat - Helsinki
Salomonkatu 17, Kamppi, 00100 Helsinki #10856660
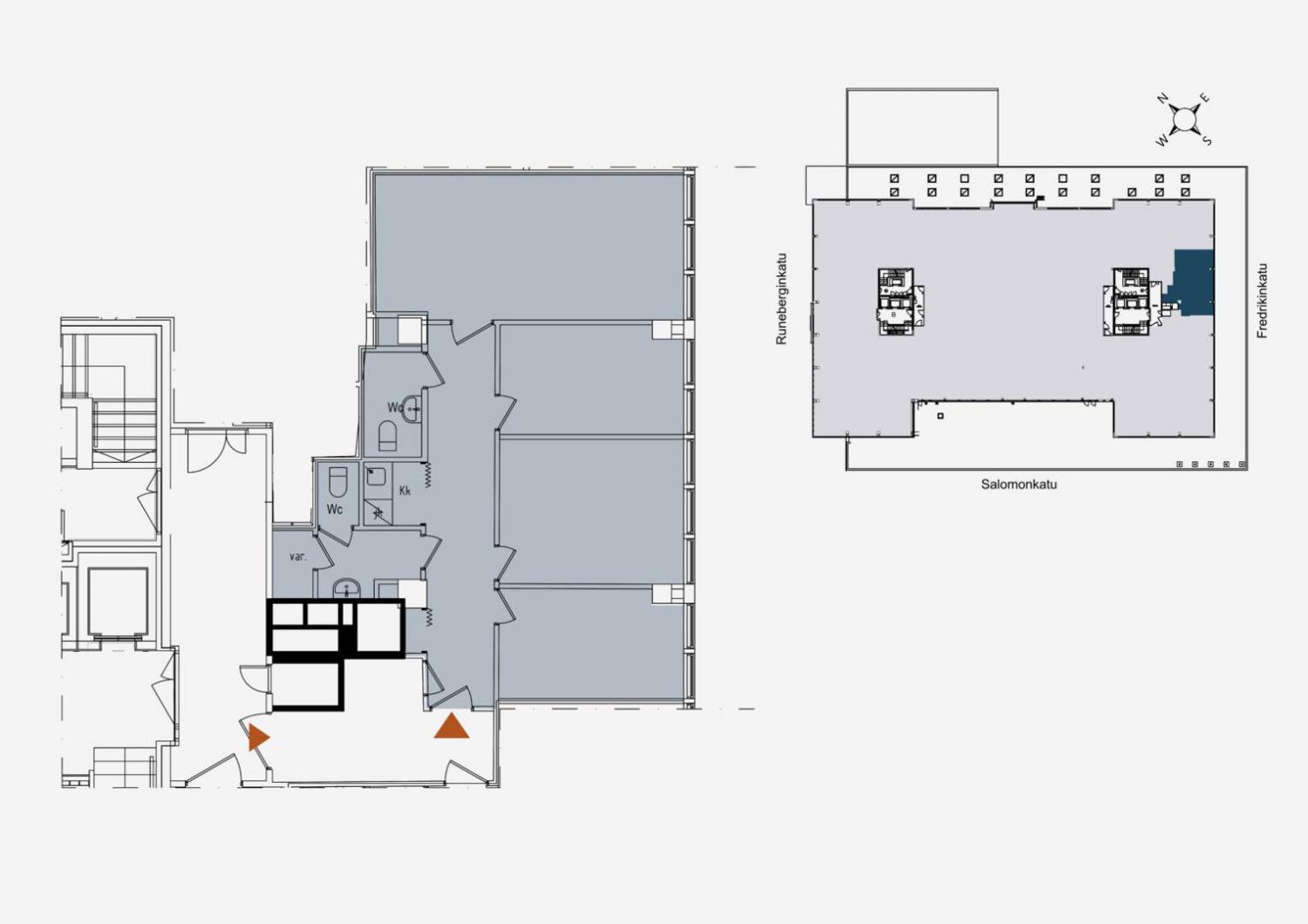
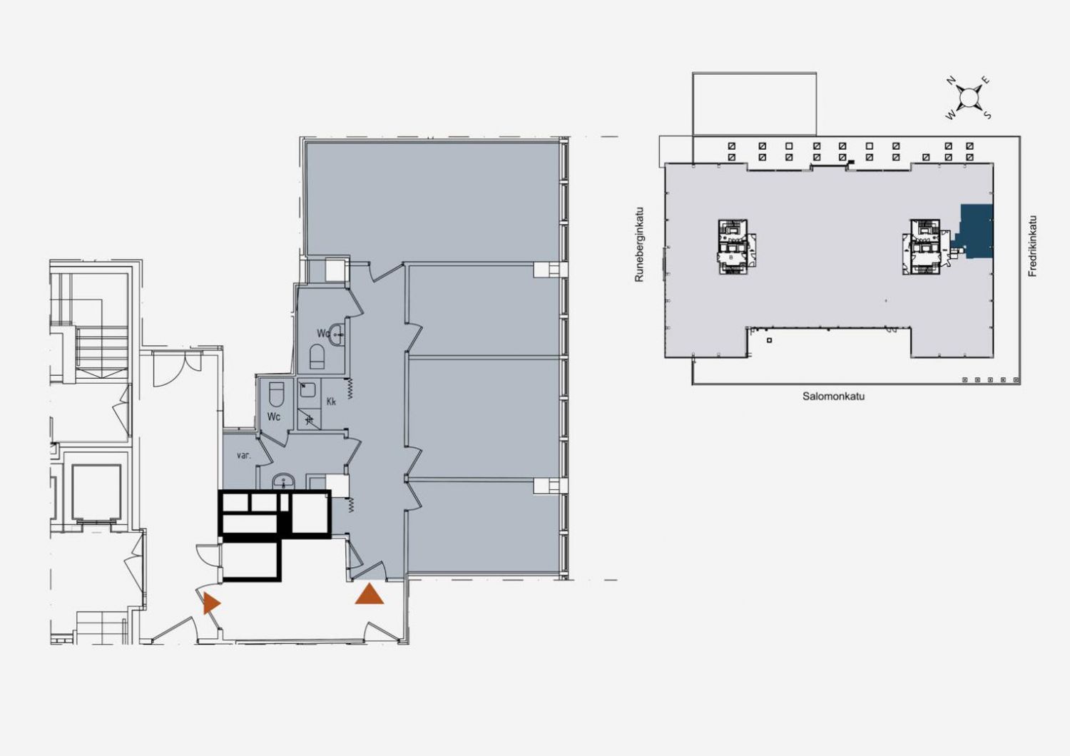
THE MIDDLE (Autotalo) - Toimisto 80,9 m²
Osoite
Salomonkatu 17, 00100 Helsinki
Tilatyyppi
Toimistotilaa
81 m2
Pohjapiirros
Kiinteistö
Helposti saavutettavissa oleva pieni toimistotila loistosijainnilla
Tämä toimistotila sijaitsee keskeisellä paikalla Helsingin Autotalossa. Tila koostuu erikokoisista huoneista ja sopii n. 3-8 hengelle. Kiinteistön kolmannessa kerroksessa sijaitseva toimisto on helposti saavutettavissa, ja kulku onnistuu suoraan Salomonkadulta tai Fredrikinkadulta. Sijainti keskellä Kamppia tarjoaa loistavat palvelut aivan käden ulottuvilla, mikä tekee arjesta sujuvaa ja vaivatonta.
Tämä toimisto on täydellinen valinta yritykselle, joka arvostaa keskeistä sijaintia ja hyviä liikenneyhteyksiä.
Autotalo – Kampin ikoninen maamerkki
Autotalo tarjoaa modernia ja hyväkuntoista toimitilaa sekä ravintolaliiketilaa Helsingin sydämessä. Vuonna 2015 valmistunut perusparannushanke takaa tilojen nykyaikaisuuden ja toimivuuden.
Sijainti
Autotalo on valmistunut vuonna 1958 ja se on osa Kampin Autotalokorttelia. Rakennuksessa on 12 maanpäällistä ja 3 maanalaista kerrosta, jotka tarjoavat monipuoliset tilaratkaisut eri tarpeisiin. Autotalokortteli sijaitsee näkyvällä paikalla Kampin kauppakeskuksen vieressä, ja kohteeseen on erinomaiset julkiset kulkuyhteydet metrolla, raitiovaunulla ja busseilla. Yksityisautoille on maanalaista pysäköintitilaa korttelin omassa autohallissa.
Palvelut
Peruskorjaukset ja parannushankkeet ovat avartaneet tiloja ja tehneet niistä käyttäjilleen avoimempia. Autotalon aulatila on uudistettu näyttäväksi ja viihtyisäksi. Kiinteistö on esteetön ja sopii liikuntarajoitteisille. Upeat edustustilat saunoineen erilaisten tilaisuuksien järjestämiseen sijaitsevat toisen toimistotornin ylimmässä kerroksessa. Monipuolinen ravintolamaailma ja K-kauppa löytyvät katutasosta. Lisäksi kiinteistössä on pyöräparkki suihkuineen, auton pesupalvelut ja sähköautojen latauspisteitä parkkihallissa, mikä tekee työmatkapyöräilystä ja autoilusta entistä mukavampaa.
Ympäristöystävällisyys
Kiinteistön Breeam In-Use -ympäristösertifikaatti tasolla Very Good korostaa kiinteistön ympäristöystävällisyyttä ja korkeaa laatua.
Ota yhteyttä
Kiinnostuitko? Ota yhteyttä ja tule tutustumaan tiloihin!
Toimitilavälityspalvelumme on toimitilaa etsivälle täysin maksuton.
Tämä toimistotila sijaitsee keskeisellä paikalla Helsingin Autotalossa. Tila koostuu erikokoisista huoneista ja sopii n. 3-8 hengelle. Kiinteistön kolmannessa kerroksessa sijaitseva toimisto on helposti saavutettavissa, ja kulku onnistuu suoraan Salomonkadulta tai Fredrikinkadulta. Sijainti keskellä Kamppia tarjoaa loistavat palvelut aivan käden ulottuvilla, mikä tekee arjesta sujuvaa ja vaivatonta.
Tämä toimisto on täydellinen valinta yritykselle, joka arvostaa keskeistä sijaintia ja hyviä liikenneyhteyksiä.
Autotalo – Kampin ikoninen maamerkki
Autotalo tarjoaa modernia ja hyväkuntoista toimitilaa sekä ravintolaliiketilaa Helsingin sydämessä. Vuonna 2015 valmistunut perusparannushanke takaa tilojen nykyaikaisuuden ja toimivuuden.
Sijainti
Autotalo on valmistunut vuonna 1958 ja se on osa Kampin Autotalokorttelia. Rakennuksessa on 12 maanpäällistä ja 3 maanalaista kerrosta, jotka tarjoavat monipuoliset tilaratkaisut eri tarpeisiin. Autotalokortteli sijaitsee näkyvällä paikalla Kampin kauppakeskuksen vieressä, ja kohteeseen on erinomaiset julkiset kulkuyhteydet metrolla, raitiovaunulla ja busseilla. Yksityisautoille on maanalaista pysäköintitilaa korttelin omassa autohallissa.
Palvelut
Peruskorjaukset ja parannushankkeet ovat avartaneet tiloja ja tehneet niistä käyttäjilleen avoimempia. Autotalon aulatila on uudistettu näyttäväksi ja viihtyisäksi. Kiinteistö on esteetön ja sopii liikuntarajoitteisille. Upeat edustustilat saunoineen erilaisten tilaisuuksien järjestämiseen sijaitsevat toisen toimistotornin ylimmässä kerroksessa. Monipuolinen ravintolamaailma ja K-kauppa löytyvät katutasosta. Lisäksi kiinteistössä on pyöräparkki suihkuineen, auton pesupalvelut ja sähköautojen latauspisteitä parkkihallissa, mikä tekee työmatkapyöräilystä ja autoilusta entistä mukavampaa.
Ympäristöystävällisyys
Kiinteistön Breeam In-Use -ympäristösertifikaatti tasolla Very Good korostaa kiinteistön ympäristöystävällisyyttä ja korkeaa laatua.
Ota yhteyttä
Kiinnostuitko? Ota yhteyttä ja tule tutustumaan tiloihin!
Toimitilavälityspalvelumme on toimitilaa etsivälle täysin maksuton.
Vapautuu
Kysy
Kerros
3
Ota yhteyttä
Logistila Oy
Kylätie 11-13, 00320 HELSINKI
Karoliina Turppo
Näytä puhelinnumero
050 345 3258
Pyydä lisätietoa
