Vuokrataan tuotantotilat, varastotilat - Vantaa
Varasto- tai tuotantotila 300 m², Kylänpääntie 4 B, Kivistö, 01750 Vantaa #10856522
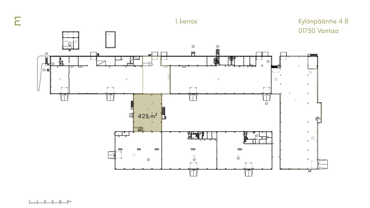
Vuokrattavana 425 m² varasto-/tuotantotila katutasossa. Soveltuu erinomaisesti varastointiin, kevyeen tuotantoon tai tukitilaksi muulle toiminnalle.
Hyvin saavutettava sijainti Vantaan Kivistössä Hämeenlinnanväylän ja Kehä III:n läheisyydessä.
Lisätiedot ja yhteydenotto:
Joona Vuori
Head of Leasing and Growth
p. 050 526 7403
joona.vuori@nooflab.com
Katutasossa
Nooflab Oy
Joona Vuori
Head of Leasing and Growth
p.
Näytä puhelinnumero
050 526 7403
NoofLab on riippumaton ja asiantunteva kiinteistöalan kumppani, joka auttaa yrityksiä löytämään tarpeisiinsa parhaiten sopivat toimitilat. Kaikkitoimitilat.fi-palvelumme on tilojen etsijöille aina veloitukseton.
