Vuokrataan liiketilat - Helsinki
Hyttitie 8, Malmi, 00700 Helsinki #10856516
Kesällä 2026 vapautuu vuokrattavaksi katutason toimitila, joka soveltuu hyvin myymäläksi tai varastotilaksi. Tila toimii tällä hetkellä siivousvälineliikkeen noutovarastona.
Osoite
Hyttitie 8, 00700 Helsinki
Tilatyyppi
Liiketilaa
632 m2
Kiinteistö
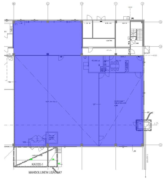
Vuokrattava myymälä-/varastotila 632 m², Hyttitie 8, Helsinki
Kesällä 2026 vapautuu vuokrattavaksi katutason toimitila, joka soveltuu hyvin myymäläksi tai varastotilaksi. Tila toimii tällä hetkellä siivousvälineliikkeen noutovarastona. Tilassa oma keittiö, pienet sosiaalitilat ja kaksi erillistä toimistohuonetta. Hallin puolella wc/ siivouskomero. Varastolla lastauslaituri. Tilan vapaa korkeus n. 5,7 m.
Sijainti
Kiinteistön sijainti on hyvä ja kohteelta on sujuvat yhteydet Kehä I:lle, Kehä III:lle ja Lahdenväylälle.
Lähialueella on useita lounaspaikkoja ja erilaisia palveluja. Malmin palvelut ovat 5 minuutin ajomatkan päässä ja Itäkeskuksen palvelut noin 10 minuutin ajomatkan päässä kiinteistöltä.
Tutustu kaikkiin vapaisiin toimitiloihin: sagaxtilat.fi
Tutustu kaikkiin vapaisiin toimitiloihin: https://sagaxtilat.fi/toimitilat
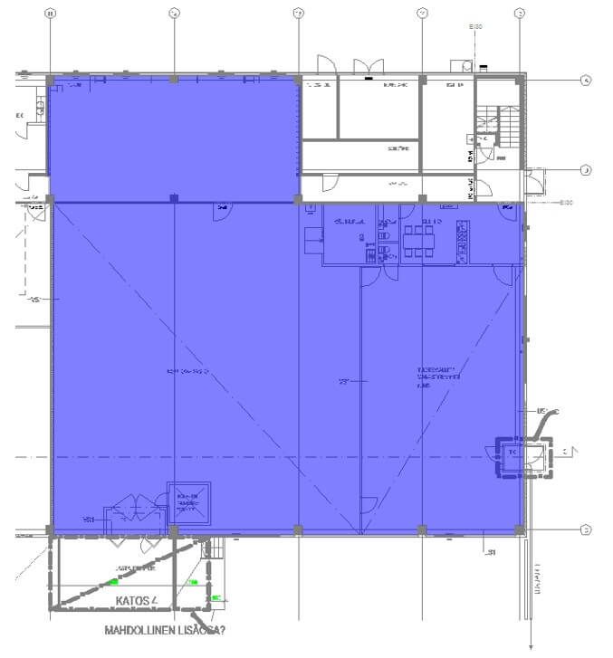
Kesällä 2026 vapautuu vuokrattavaksi katutason toimitila, joka soveltuu hyvin myymäläksi tai varastotilaksi. Tila toimii tällä hetkellä siivousvälineliikkeen noutovarastona. Tilassa oma keittiö, pienet sosiaalitilat ja kaksi erillistä toimistohuonetta. Hallin puolella wc/ siivouskomero. Varastolla lastauslaituri. Tilan vapaa korkeus n. 5,7 m.
Sijainti
Kiinteistön sijainti on hyvä ja kohteelta on sujuvat yhteydet Kehä I:lle, Kehä III:lle ja Lahdenväylälle.
Lähialueella on useita lounaspaikkoja ja erilaisia palveluja. Malmin palvelut ovat 5 minuutin ajomatkan päässä ja Itäkeskuksen palvelut noin 10 minuutin ajomatkan päässä kiinteistöltä.
Tutustu kaikkiin vapaisiin toimitiloihin: sagaxtilat.fi
Tutustu kaikkiin vapaisiin toimitiloihin: https://sagaxtilat.fi/toimitilat
Vapautuu
Kysy
Rakennusvuosi
1977
Ota yhteyttä
Sagax Finland
Aleksanterinkatu
Näytä puhelinnumero
19 00100
HELSINKI
Näytä puhelinnumero
010 3200 320
Pyydä lisätietoa
