Vuokrataan toimistotilat, tuotantotilat, varastotilat - Pirkkala
Jasperintie 334 B, 33960 Pirkkala #10856512
Selkeä, siisti ja korkea halli vapautuu vuokrattavaksi keväällä/kesällä 2026.
Osoite
Jasperintie 334 B, 33960 Pirkkala
Tilatyyppi
Toimistotilaa
1116 m2
Tuotantotilaa
1116 m2
Varastotilaa
1116 m2
Yhteensä
1116 m2
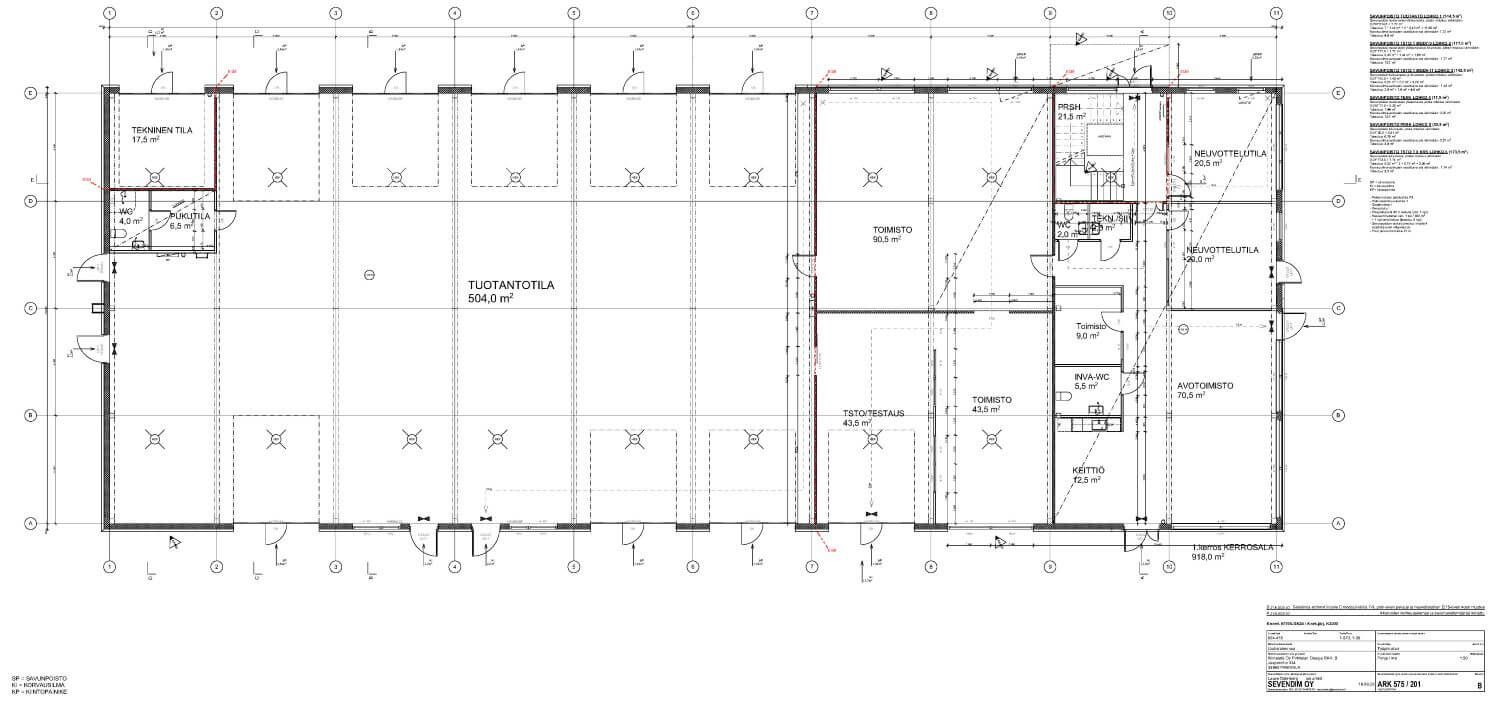
Pohjapiirros
Kiinteistö
Selkeä, siisti ja korkea hallitila vapautuu vuokrattavaksi keväällä/kesällä 2026. Tilassa on tällä hetkellä kolme nosto-ovea, joiden määrä on räätälöitävissä tarpeen mukaan. Maantason lastaus suoraan halliin nosto-ovien kautta, lisäksi erilliset käyntiovet. Toimistot sijaitsevat toisessa kerroksessa sekä hallin puolella, ja hallissa on wc- ja sosiaalitilat. Tila on ollut aiemmin sähköautojen latauspisteoperaattorin käytössä. Ylläpitovuokra ei sisällä lämmitystä, joka on vuokralaisen vastuulla. Lämmitysmuotona maalämpö. Pysäköintipaikat sisältyvät vuokraan.
Toimitilan tiedot:
- n. 1 116 m²
- Toimistot toisella kerroksessa
- Pysäköintipaikat sisältyvät vuokraan
- Kolme nosto-ovea
Ota yhteyttä ja kysy lisää!
Toimitilan tiedot:
- n. 1 116 m²
- Toimistot toisella kerroksessa
- Pysäköintipaikat sisältyvät vuokraan
- Kolme nosto-ovea
Ota yhteyttä ja kysy lisää!
Vapautuu
Keväällä 2026
Rakennusvuosi
2020
Kerros
1.-2.
Ota yhteyttä
Arvo Premises Oy
Joni Männikkö
Osakas, Kiinteistönvälittäjä, LKV,
Näytä puhelinnumero
0445636441
Joakim Kukkonen
Osakas, Toimitilavälittäjä
Näytä puhelinnumero
040 555 8106
Pyydä lisätietoa
