Vuokrataan toimistotilat - Helsinki
Vääksyntie 2, Vallila, 00510 Helsinki #10856500
Moderni 5. kerroksen 1678 m² toimistohuoneisto laadukkaassa pääkonttoritason kiinteistössä
Osoite
Vääksyntie 2, 00510 Helsinki
Tilatyyppi
Toimistotilaa
1678 m2
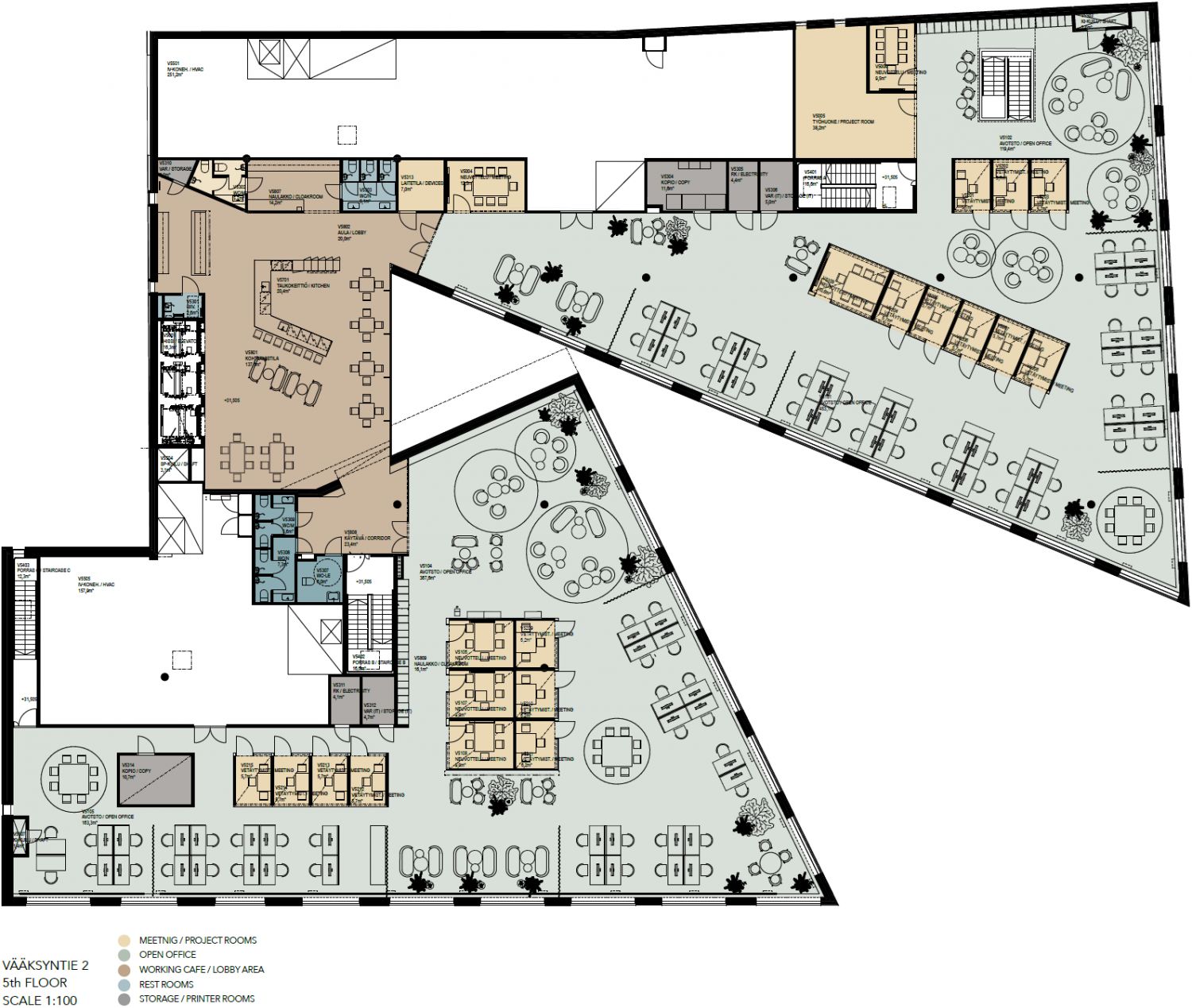
Pohjapiirros
Kiinteistö
Vääksyntie 2:ssa sijaitseva viidennen kerroksen 1678 m² toimistohuoneisto tarjoaa modernit ja viihtyisät puitteet tehokkaaseen työskentelyyn Vallilan kehittyvässä yritysympäristössä. Tila koostuu toimivasta avotoimistosta, erillisistä työ- ja kokoushuoneista sekä oleskelu- ja taukotilasta, jotka tukevat monipuolisia työnteon tapoja. Lisäksi käytössä ovat omat wc-tilat. Suuret ikkunapinnat tuovat runsaasti luonnonvaloa ja avautuvat Teollisuuskadun, Dallapénpuiston ja Vääksyntien suuntiin, mikä luo avaran ja inspiroivan työympäristön.
Kiinteistö on osa OP:n entisenä pääkonttorina tunnettua modernia toimistokorttelia, joka on valmistunut vuosina 2015–2017 JKMM Arkkitehtien suunnittelemana. Rakennus on palkittu LEED Gold -sertifikaatilla, ja sen suunnittelussa on alusta alkaen panostettu energiatehokkuuteen, kestävyyteen ja korkealaatuisiin materiaalivalintoihin. Rakennuksen elinkaaren hiilijalanjälki on huomioitu muun muassa materiaalien valinnassa ja purkumateriaalien kierrätyksessä, ja parhaillaan käynnissä oleva kehitystyö tähtää energiatehokkuusluokituksen edelleen parantamiseen. Älykäs LED-valaistus, rakennusautomaatioon kytketyt lämpötila-anturit sekä tarpeenmukainen ilmanvaihto takaavat miellyttävät ja terveelliset olosuhteet.
Rakennuksen palvelut ovat poikkeuksellisen kattavat ja tukevat sujuvaa työarkea. Vuokralaisten käytössä ovat useat lounasravintolat, edustavat aulapalvelut, jaettavat neuvotteluhuoneet ja auditoriot sekä monipuoliset hyvinvointipalvelut, kuten kuntosali, hieroja, fysioterapeutti ja kampaamo. Korttelin keskellä sijaitseva galleriakerros kokoaa palvelut helposti saavutettavaksi kokonaisuudeksi, ja laadukkaat sosiaali- ja saniteettitilat lisäävät arjen mukavuutta. Myös lämmin maanalainen pyöräparkki tukee aktiivista ja kestävää liikkumista.
Vallila on yksi Helsingin kiinnostavimmista ja nopeimmin kehittyvistä yritysalueista, joka sijoittuu keskeiselle Pasila–Vallila–Kalasatama-akselille. Alueelle on erinomaiset julkisen liikenteen yhteydet lähes kaikilla kulkumuodoilla, ja Helsingin keskusta on vain noin 2,5 kilometrin tai kahden metropysäkin päässä. Kiinteistössä on laaja maanalainen pysäköintikapasiteetti ja sujuvat yhteydet pääväylille. Läheisyys Triplan ja Redin kauppakeskuksiin sekä kasvaviin asuinalueisiin tekee sijainnista houkuttelevan niin työntekijöille kuin asiakkaillekin.
Kiinteistö on osa OP:n entisenä pääkonttorina tunnettua modernia toimistokorttelia, joka on valmistunut vuosina 2015–2017 JKMM Arkkitehtien suunnittelemana. Rakennus on palkittu LEED Gold -sertifikaatilla, ja sen suunnittelussa on alusta alkaen panostettu energiatehokkuuteen, kestävyyteen ja korkealaatuisiin materiaalivalintoihin. Rakennuksen elinkaaren hiilijalanjälki on huomioitu muun muassa materiaalien valinnassa ja purkumateriaalien kierrätyksessä, ja parhaillaan käynnissä oleva kehitystyö tähtää energiatehokkuusluokituksen edelleen parantamiseen. Älykäs LED-valaistus, rakennusautomaatioon kytketyt lämpötila-anturit sekä tarpeenmukainen ilmanvaihto takaavat miellyttävät ja terveelliset olosuhteet.
Rakennuksen palvelut ovat poikkeuksellisen kattavat ja tukevat sujuvaa työarkea. Vuokralaisten käytössä ovat useat lounasravintolat, edustavat aulapalvelut, jaettavat neuvotteluhuoneet ja auditoriot sekä monipuoliset hyvinvointipalvelut, kuten kuntosali, hieroja, fysioterapeutti ja kampaamo. Korttelin keskellä sijaitseva galleriakerros kokoaa palvelut helposti saavutettavaksi kokonaisuudeksi, ja laadukkaat sosiaali- ja saniteettitilat lisäävät arjen mukavuutta. Myös lämmin maanalainen pyöräparkki tukee aktiivista ja kestävää liikkumista.
Vallila on yksi Helsingin kiinnostavimmista ja nopeimmin kehittyvistä yritysalueista, joka sijoittuu keskeiselle Pasila–Vallila–Kalasatama-akselille. Alueelle on erinomaiset julkisen liikenteen yhteydet lähes kaikilla kulkumuodoilla, ja Helsingin keskusta on vain noin 2,5 kilometrin tai kahden metropysäkin päässä. Kiinteistössä on laaja maanalainen pysäköintikapasiteetti ja sujuvat yhteydet pääväylille. Läheisyys Triplan ja Redin kauppakeskuksiin sekä kasvaviin asuinalueisiin tekee sijainnista houkuttelevan niin työntekijöille kuin asiakkaillekin.
Vapautuu
Heti
Rakennusvuosi
2017
Kerros
5 / 5
Energiatehokkuusluokka
B2018
Näkyvällä paikalla
Hissi
Ota yhteyttä
ScanReal Oy LKV
Opus Business Park
Hitsaajankatu 24
00810 Helsinki
info@scanreal.fi
Puh:
Näytä puhelinnumero
020 730 8830
Sopivat toimitilat yhdellä otolla!
Kartoitamme toimitilatarpeesi ja etsimme yrityksellesi parhaiten sopivat vapaat toimitilat. Koska vuokranantajat maksavat palvelumme, on tämä yrityksellesi veloituksetonta.
Palvelumme on tilanhakijalle ilmainen
Pyydä lisätietoa
