Vuokrataan toimistotilat - Helsinki
Bulevardi 6 A, Kamppi, 00120 Helsinki #10856471
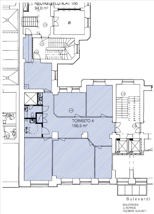
Vapautumassa 2. kerroksen toimitilaa 156.5 m2 osoitteessa Bulevardi 6 A.
RAKE-talon modernit tilat yhdistettynä keskeiseen sijaintiin, Klaus K:n monipuolisiin palveluihin ja kiinteistön ainutlaatuiseen historiaan tekevät rakennuksista täydellisen paikan nykyaikaiselle yritystoiminnalle. RAKE-talon omien palveluiden lisäksi kävelyetäisyydellä sijaitsevat kaikki keskustan liikkeet: tunnetut ostoskeskukset kuten Stockmann, Forum ja Kamppi. Aleksanterinkadun, Iso Roobertinkadun ja Fredrikinkadun muotiliikkeet.
Tämä A-portaan toimitila sijaitsee 4. kerroksessa, johon saavutaan hissillä pääsisäänkäynnin kautta. Toimitila käsittää 6 valoisaa huonetilaa, sekä toimistokeittiön ja laadukkaat sosiaalitilat. Toimitilan ikkunat avaavat upean näkymän Bulevardille. Tilassa on jäähdytetty koneellinen ilmastointi ja Cat 6a-tasoiset IT-valmiudet. Kaikissa tiloissa on parkettilattiat.
Kiinteistössä on vuokrattavissa neuvottelukeskus kaikilla Hotelli Klaus K:n palveluilla. Kevyen liikenteen suosijoille kiinteistöön on rakennettu erilliset suihku- ja sosiaalitilat. Huoneisto ja koko kiinteistö on saneerattu kestävän kehityksen periaatteita noudattaen ja se antaa vuokralaiselle hyvät lähtökohdat toteuttaa ympäristöämme säästävää ja kestävää kehitystä tukevaa yrityskulttuuria.
Lisätietoja numerosta 020 7290 710. Lisää kohteita osoitteessa www.premises.fi.
Kohteella ei ole lain edellyttämää energiatodistusta.Kerros: 2
Pääväylät lännestä Uudenmaankatua ja Bulevardia pitkin, pohjoisesta Mannerheimintietä myöten ja idästä Esplanadilta muodostavat tieverkon, jolla saavutat RAKE-talon ympäristöineen myös päivän kiihkeimpinä tunteina. Linja-autoasema, metroasemat, päärautatieasema, Etelä- ja länsisatama sekä lentoaseman kaupunkiterminaali ovat aivan lähiympäristössä.
CRE PREMISES
Puh. Näytä puhelinnumero 020 7290 710
Vantaankoskentie 14
01670 VANTAA
