Vuokrataan toimistotilat - Jyväskylä
Hippos Osaamiskeskus, Keskikatu 7, Rautpohja-Hippos, 40700 Jyväskylä #10856422
Hippokselle rakentumassa olevan Osaamiskeskuksen toimitilat valmistuvat vuonna 2027
Osoite
Keskikatu 7, 40700 Jyväskylä
Tilatyyppi
Toimistotilaa
252,5 m2
Muuta
Jyväskylän Hippoksen uusien liikunta- ja urheilutilojen rakentaminen on käynnissä. Hippokselle rakentuva Hipposkeskus koostuu neljästä kokonaisuudesta: liikuntakeskuksesta, osaamiskeskuksesta, jääurheilukeskuksesta sekä pysäköintihalli Hippos-Parkista. Rakentamista tehdään vaiheittain ja kokonaisuudessaan hanke valmistuu loppuvuoteen 2027 mennessä.
Osaamiskeskukseen sijoittuu uuden rakennuskokonaisuuden pääsisäänkäynti sekä tutkimus-, opetus-, toimisto-, liike-, ravintola-, kahvila- ja kokoustiloja. Osaamiskeskuksen koko on noin 18 050 neliömetriä. Alueen pysäköinti järjestetään tilojen yhteyteen rakennettavaan pysäköintihalliin. Halliin tulee yli 700 ja piha-alueille noin 250 autopaikkaa.
Osaamiskeskus ja pysäköintihalli valmistuvat uudessa aikataulussa alueelle ensimmäisenä kesällä 2027.
Vuokrattavat toimitilat:
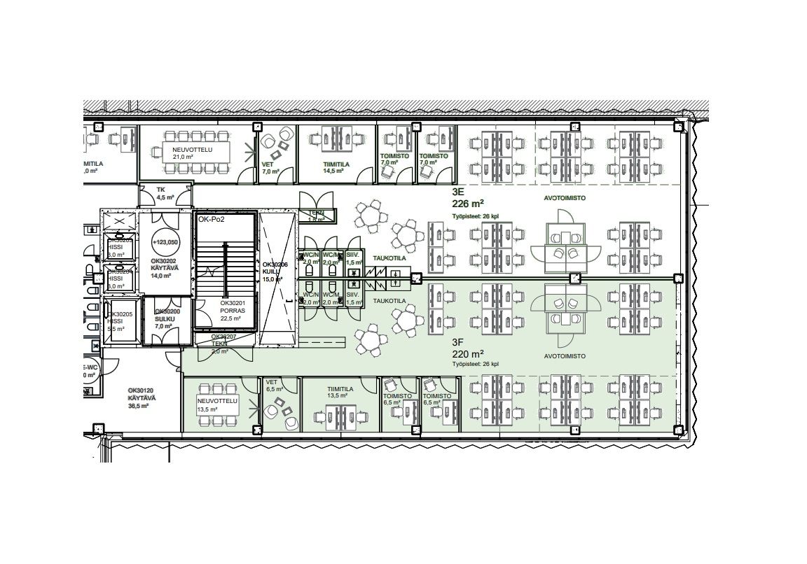
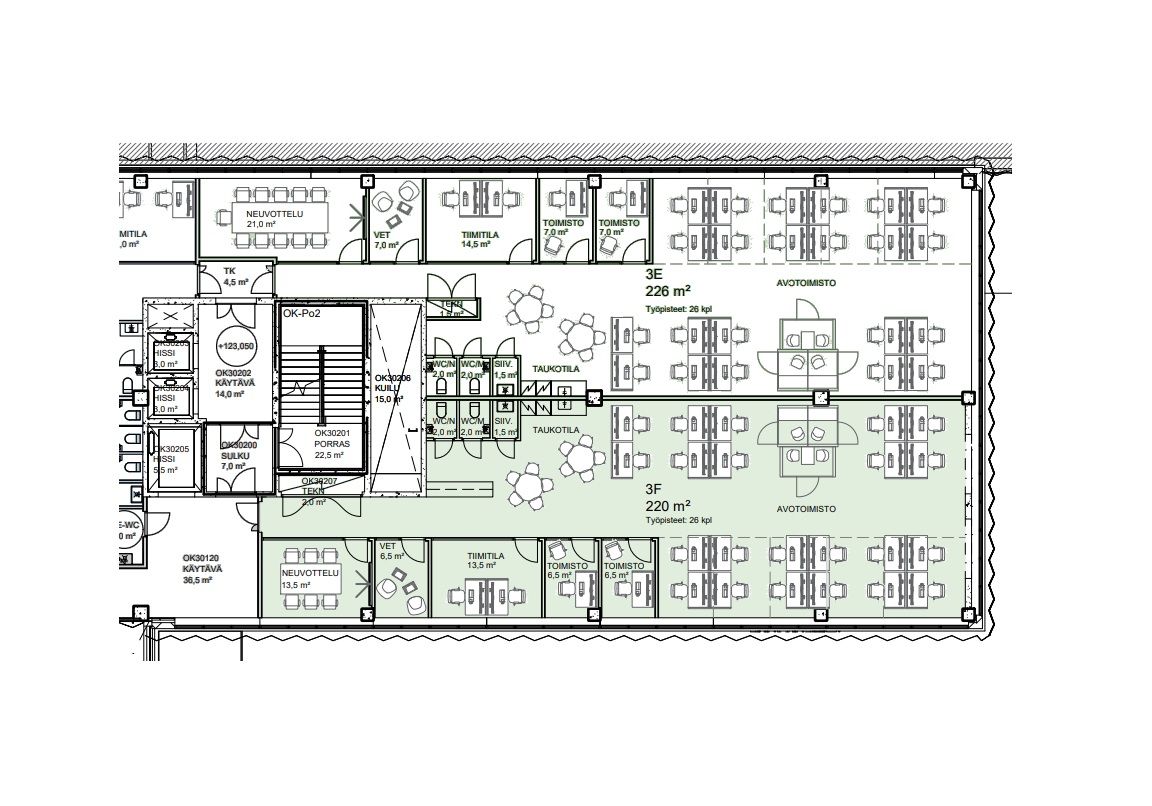
3. kerros, toimisto (220 m2), jyvitetty pinta-ala 252,5 m2
Ota yhteyttä Infoiaan ja kysy lisää Hippokselle valmistuvista toimitiloista!
Osaamiskeskukseen sijoittuu uuden rakennuskokonaisuuden pääsisäänkäynti sekä tutkimus-, opetus-, toimisto-, liike-, ravintola-, kahvila- ja kokoustiloja. Osaamiskeskuksen koko on noin 18 050 neliömetriä. Alueen pysäköinti järjestetään tilojen yhteyteen rakennettavaan pysäköintihalliin. Halliin tulee yli 700 ja piha-alueille noin 250 autopaikkaa.
Osaamiskeskus ja pysäköintihalli valmistuvat uudessa aikataulussa alueelle ensimmäisenä kesällä 2027.
Vuokrattavat toimitilat:
3. kerros, toimisto (220 m2), jyvitetty pinta-ala 252,5 m2
Ota yhteyttä Infoiaan ja kysy lisää Hippokselle valmistuvista toimitiloista!
Vapautuu
Kysy
Kerros
3
Uudiskohde
Ota yhteyttä
Infonia Oy
Kauppakatu 18 A, 40100 Jyväskylä
Näytä puhelinnumero
+358 405041401
Jukka Akselin
Näytä puhelinnumero
+358 405041401
Pyydä lisätietoa
