Vuokrataan liiketilat - Jyväskylä
Hippos Osaamiskeskus, Keskikatu 7, Rautpohja-Hippos, 40700 Jyväskylä #10856418
Hippokselle rakentumassa olevan Osaamiskeskuksen toimitilat valmistuvat vuonna 2027
Osoite
Keskikatu 7, 40700 Jyväskylä
Tilatyyppi
Liiketilaa
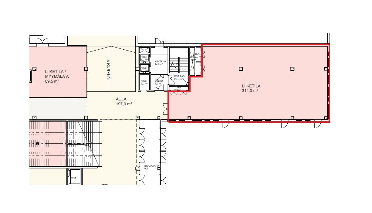
314 m2
Muuta
Jyväskylän Hippoksen uusien liikunta- ja urheilutilojen rakentaminen on käynnissä. Hippokselle rakentuva Hipposkeskus koostuu neljästä kokonaisuudesta: liikuntakeskuksesta, osaamiskeskuksesta, jääurheilukeskuksesta sekä pysäköintihalli Hippos-Parkista. Rakentamista tehdään vaiheittain ja kokonaisuudessaan hanke valmistuu loppuvuoteen 2027 mennessä.
Osaamiskeskukseen sijoittuu uuden rakennuskokonaisuuden pääsisäänkäynti sekä tutkimus-, opetus-, toimisto-, liike-, ravintola-, kahvila- ja kokoustiloja. Osaamiskeskuksen koko on noin 18 050 neliömetriä. Alueen pysäköinti järjestetään tilojen yhteyteen rakennettavaan pysäköintihalliin. Halliin tulee yli 700 ja piha-alueille noin 250 autopaikkaa.
Osaamiskeskus ja pysäköintihalli valmistuvat uudessa aikataulussa alueelle ensimmäisenä kesällä 2027.
Vuokrattavana 1. krs rakenteilla oleva liiketila 314 m2
Ota yhteyttä Infoiaan ja kysy lisää Hippokselle valmistuvista toimitiloista!
Osaamiskeskukseen sijoittuu uuden rakennuskokonaisuuden pääsisäänkäynti sekä tutkimus-, opetus-, toimisto-, liike-, ravintola-, kahvila- ja kokoustiloja. Osaamiskeskuksen koko on noin 18 050 neliömetriä. Alueen pysäköinti järjestetään tilojen yhteyteen rakennettavaan pysäköintihalliin. Halliin tulee yli 700 ja piha-alueille noin 250 autopaikkaa.
Osaamiskeskus ja pysäköintihalli valmistuvat uudessa aikataulussa alueelle ensimmäisenä kesällä 2027.
Vuokrattavana 1. krs rakenteilla oleva liiketila 314 m2
Ota yhteyttä Infoiaan ja kysy lisää Hippokselle valmistuvista toimitiloista!
Vapautuu
Kysy
Kerros
1
Uudiskohde
Ota yhteyttä
Infonia Oy
Kauppakatu 18 A, 40100 Jyväskylä
Näytä puhelinnumero
+358 405041401
Jukka Akselin
Näytä puhelinnumero
+358 405041401
Pyydä lisätietoa
