Vuokrataan toimistotilat - Helsinki
Korkeavuorenkatu 30, Kaartinkaupunki, 00100 Helsinki #10856403
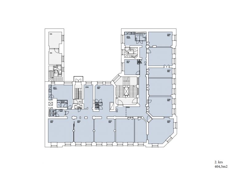
Vuokrataan siistiin kuntoon remontoitu toimistotila vain korttelin päässä Espan puistosta. Tilassa on huoneita ja lasiseinällä jaettavia työtiloja, kaksi keittiötä sekä suihku- ja wc-tilat. Tila voidaan myös jakaa kahdeksi pienemmäksi tilaksi, 173 m2 ja 231,5 m2. Ota yhteyttä ja sovi esittely. vuokrauspalvelumme on tilanhakijoille maksuton.
Osoite
Korkeavuorenkatu 30, 00100 Helsinki
Tilatyyppi
Toimistotilaa
404 m2
Tilajako
Jaettavissa
Jaettavissa 231,5 m2 ja 173 m2.
Pohjapiirros
Kiinteistö
Keskustan arvokiinteistö upealla ja näyttävällä rappukäytävällä. Arkkitehti Wreden suunnitelema kiinteistö Ludviginkadun ja Korkeavuorenkadun kulmassa.
Pysäköinti
Rakennuksen edessä on maksullisia, myös yrityspysäköintitunnuskella toimivia kadunvarsipysäköintipaikkoja. Sopimuspysäköintipaikkoja on tarjolla lähialueen pysäköintihalleissa, joista lähimmän sisäänkäynti sijaitsee suoraan taloa vastapäätä.
Vapautuu
Heti
Kerros
2 / 5
Energiatehokkuusluokka
Ei lain edellyttämää energiatodistusta
Jaettavissa
Hissi
Ota yhteyttä
Senaatin Notariaatti Oy LKV
Lämmittäjänkatu 4 A
FIN-00880 Helsinki
Tel:
Näytä puhelinnumero
+358 9 7745 100
Pyydä lisätietoa
