Vuokrataan toimistotilat - Helsinki
Energiakuja 3, Ruoholahti, 00180 Helsinki #10856392
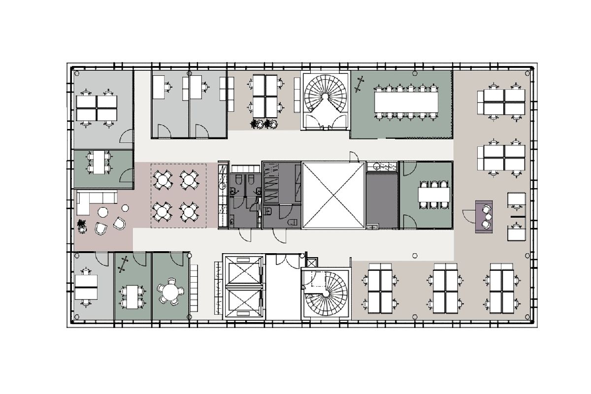
Vuokrataan ylimmän kerroksen toimisto Ruoholahdesta merinäköalalla. Koko kerroksen tila, josta upeat näkymät kaikkiin ilmansuuntiin. Tilaratkaisusta riippuen toimisto soveltuu jopa 35 - 40 henkilön työskentelyyn. Moderni kiinteistötekniikka takaa miellyttävät työskentelyolosuhteet vuodenajasta riippumatta. Hissiyhteys tilaan suoraan parkkihallista.
Technopolis Ruoholahti kampus sijaitsee huikealla paikalla meren äärellä. Kampukselta löytyy kokoustilat, kahvila sekä kaksi ravintolaa. Käytettävissä on myös aulapalvelu, kokoustilat, sosiaalitilat ja kuntosali.
Technopolis Ruoholahti kampukselle pääsee kulkemaan kätevästi. Autolla pääsee kulkemaan Länsiväylää pitkin kiinteistön alla olevaan Salmiparkkiin. Ruoholahteen on hyvät yhteydet myös metrolla, raitiovaunulla sekä linja-autoilla.
Lisätietoja soita 020 730 4530 tai info@repoint.fi. Palvelumme on tilanhakijalle ilmainen.
Hissi
Repoint Toimitilat Oy
Itälahdenkatu 22 B, 00210 Helsinki
Näytä puhelinnumero
020 730 4530
Lisätietoja soita Näytä puhelinnumero 020 730 4530 tai info@repoint.fi
https://repoint.fi/